HomeDiagramsDatabaseMapsForum About
     

Go Back   SkyscraperPage Forum > Regional Sections > Canada > Ontario > Ottawa-Gatineau > Downtown & Urban Ottawa


Reply

 
Thread Tools Display Modes
     
     
  #1  
Old Posted Jan 15, 2026, 2:25 PM
GeoNerd GeoNerd is offline
Registered User
 
Join Date: May 2010
Location: Ottawa, ON.
Posts: 544
1994 Scott St + 322-330 Athlone & Tweedsmuir Ave | 99/99/136m | 29/29/40f | Proposed

Huge 3 tower development application coming on Scott Street directly across from Westboro Station. Up to 40 storeys. Definitely going to ruffle some feathers.
Reply With Quote
     
     
  #2  
Old Posted Jan 15, 2026, 3:03 PM
GeoNerd GeoNerd is offline
Registered User
 
Join Date: May 2010
Location: Ottawa, ON.
Posts: 544
1994 Scott St + 322-330 Athlone & Tweedsmuir Ave | 99/99/136m | 29/29/40f | Proposed

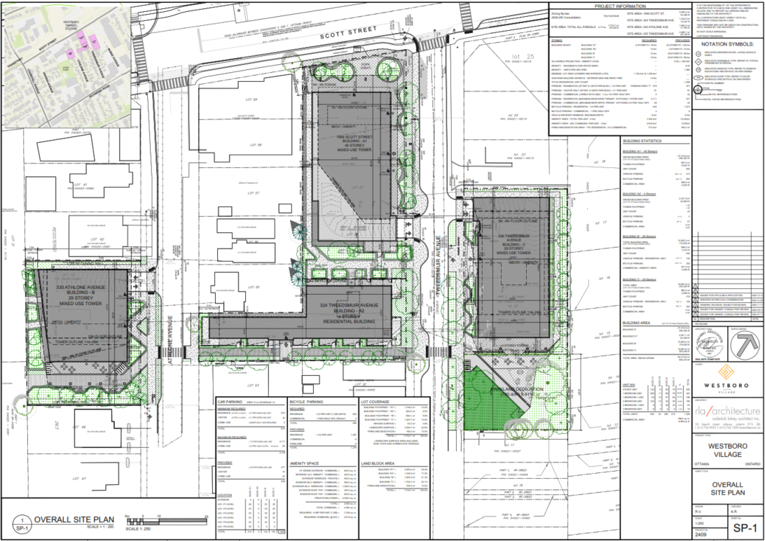
An Official Plan Amendment application has been submitted for 1994 Scott Street, 322-330 Athlone Avenue, & 306-335 Tweedsmuir Avenue. The conceptual development consists of one 4-storey building, two 29-storey buildings, and one 40-storey building, with a total of 1,206 dwelling units, 444.5m2 of commercial GFA, 10,380m2 of amenity area, 610 vehicle parking spaces, 1,273 bicycle parking spaces, a publicly accessible mid block connection, a privately owned public space, and parkland.


Reply With Quote
     
     
  #3  
Old Posted Jan 15, 2026, 3:26 PM
rocketphish's Avatar
rocketphish rocketphish is offline
Planet Ottawa and beyond
 
Join Date: Feb 2009
Location: Greater Ottawa
Posts: 14,193
1994 Scott St | 15/99/99/136m | 4/29/29/40f | Proposed

Park River Properties is proposing concurrent Official Plan and Zoning By-law Amendment applications to establish entitlements for facilitating the redevelopment of four assembled portions of land into a transit-oriented community consisting of low- to high-rise buildings of primarily residential use, parkland, and well-connected public realm space. The included properties are located at 322, 326, 327, and 330 Athlone Avenue, 1994 Scott Street, and 306, 314, 316, 317, 318, 320, 321, 323, 324, 327, 328, 333, and 335 Tweedsmuir Avenue.

The intent is for these parcels to be developed in the future either concurrently or in separate phases. A conceptual development plan has been prepared in support of the vision and the proposed applications, and serves, in part, to rationalize the requested approvals.

Parcel A1: Parcel Area 2,265.4 m2, Tower: 40 storeys (136m) + penthouse (6.5m), Podium: 10 storeys + mezzanine, Dwelling Units: 555, Commercial GFA: 444.5 m2
Parcel A2: Parcel Area 1,332.9 m2, Building: 4 storeys (15m) + penthouse (4.5m), Dwelling Units: 43
Parcel B: Parcel Area 1,650.3 m2, Tower: 29 storeys (99m) + penthouse (4.5m), Podium: 5 storeys + mezzanine, Dwelling Units: 290
Parcel C: Parcel Area 2,485.1 m2, Tower: 29 storeys (99m) + penthouse (4.5m), Podium: 5 storeys + mezzanine, Dwelling Units: 318

Architect: Roderick Lahey Architects Inc.


Development application:
https://devapps.ottawa.ca/en/applica...5-0025/details


Location:






Siteplan:






Renderings:























Reply With Quote
     
     
  #4  
Old Posted Jan 15, 2026, 4:18 PM
golfguy9 golfguy9 is offline
Registered User
 
Join Date: Sep 2025
Posts: 27
Certainly an interesting configuration of parcels of land in that area. I can't imagine the 3 SFHs on Athlone which will be boxed in by towers will wanna remain. You would think the dev would make them offers for their property.

Renders look nice but this seems like an aggressive plan and it will probably stay on the shelves for a while like the rest of the proposed buildings in the area.
Reply With Quote
     
     
  #5  
Old Posted Jan 15, 2026, 4:31 PM
Mousel Mousel is offline
Registered User
 
Join Date: Jun 2023
Posts: 34
Wow this is a crazy one. This sort of development pushing deeper into the existing low rise neighbourhood will definitely get people's backs up but it's hard to be opposed when it's so close to a transit station.

If I'm not mistaken this would see the demolition of multiple new infill houses which is interesting. Doesn't seem like this is a proposal that will go anywhere for some time, especially since it's Park River Properties.
Reply With Quote
     
     
  #6  
Old Posted Jan 15, 2026, 4:34 PM
SkeggsEggs SkeggsEggs is offline
Registered User
 
Join Date: May 2016
Posts: 403
Quote:
Originally Posted by golfguy9 View Post
Certainly an interesting configuration of parcels of land in that area. I can't imagine the 3 SFHs on Athlone which will be boxed in by towers will wanna remain. You would think the dev would make them offers for their property.

Renders look nice but this seems like an aggressive plan and it will probably stay on the shelves for a while like the rest of the proposed buildings in the area.
In one of the docs that collection of 3 buildings shows a 36 storey building, marked as "FUTURE PHASE TO BE DEVELOPED BY OTHERS" could just be there to show what it could be, but may be a future proposal?

Has Park River (2050 Scott, 16 Egdewater, Riverside and Bank) ever actually built anything?
Reply With Quote
     
     
  #7  
Old Posted Jan 15, 2026, 5:13 PM
GeoNerd GeoNerd is offline
Registered User
 
Join Date: May 2010
Location: Ottawa, ON.
Posts: 544
No offence to anyone involved in this project, this is one of the most juvenile applications I have ever seen. I understand this is only an official plan amendment and the design is still very conceptual, but there are so many poor planning and design choices here. There’s a lot that just doesn’t make sense. I am very pro development and a YIMBY, but I think this has a very slim chance of getting approved in any resemblance to this current design.
Reply With Quote
     
     
  #8  
Old Posted Jan 15, 2026, 5:31 PM
rocketphish's Avatar
rocketphish rocketphish is offline
Planet Ottawa and beyond
 
Join Date: Feb 2009
Location: Greater Ottawa
Posts: 14,193
Remember that this is Parkview Properties, who have delivered exactly nothing so far over the years. I assume that this assembly would just be sold off, if approved.
Reply With Quote
     
     
  #9  
Old Posted Jan 15, 2026, 6:23 PM
ParkRiverProperties ParkRiverProperties is offline
Registered User
 
Join Date: Sep 2020
Posts: 72
Thanks for your critique. Are you able to provide specifics in terms of what you consider juvenile in the application and perhaps we can provide rationale, which you may or may not agree with.


Quote:
Originally Posted by GeoNerd View Post
No offence to anyone involved in this project, this is one of the most juvenile applications I have ever seen. I understand this is only an official plan amendment and the design is still very conceptual, but there are so many poor planning and design choices here. There’s a lot that just doesn’t make sense. I am very pro development and a YIMBY, but I think this has a very slim chance of getting approved in any resemblance to this current design.
Reply With Quote
     
     
  #10  
Old Posted Jan 15, 2026, 6:34 PM
ParkRiverProperties ParkRiverProperties is offline
Registered User
 
Join Date: Sep 2020
Posts: 72
Many of our projects have been faced with a number of delays in planning and a shift in market conditions (as have many others in the industry). We are hopeful for a return to an economic environment that enables us to get started on our high-rise projects. A combination of what the different levels of government are doing to offset project costs is looking promising, but still requires alignment and timing to work out. Some of our projects are advancing in 2026, while others remain on hold for the time being.

We acquire properties with the intent to develop properties when there is a reasonable expectation of a positive outcome for all stakeholders - and are prepared to wait for that environment.

For this particular property, our approach is to ready the land for development so that it can advance as soon as conditions align. It is fair to say that having all 4 buildings under construction in the short/medium term is not realistic. We hope that having approvals in place will provide an opportunity to have activity on the site once the market supports the fundamentals.

Quote:
Originally Posted by rocketphish View Post
Remember that this is Parkview Properties, who have delivered exactly nothing so far over the years. I assume that this assembly would just be sold off, if approved.
Reply With Quote
     
     
  #11  
Old Posted Jan 15, 2026, 6:46 PM
ParkRiverProperties ParkRiverProperties is offline
Registered User
 
Join Date: Sep 2020
Posts: 72
The project was designed to accommodate a potential future development on the adjacent lands. While the recent reconstruction of the Salus building following the flood makes this scenario unlikely in the near term, it remains a consideration that informed the design.

As for products delivered, the partners involved in Park River have delivered over 2,500 homes in the Ottawa-Gatineau region. We will be the first to admit that the timelines for our projects were not exactly drawn up this way when the company was started, but there have been more than a few "curve balls" dating back to 2020.


Quote:
Originally Posted by SkeggsEggs View Post
In one of the docs that collection of 3 buildings shows a 36 storey building, marked as "FUTURE PHASE TO BE DEVELOPED BY OTHERS" could just be there to show what it could be, but may be a future proposal?

Has Park River (2050 Scott, 16 Egdewater, Riverside and Bank) ever actually built anything?
Reply With Quote
     
     
  #12  
Old Posted Jan 15, 2026, 6:46 PM
rocketphish's Avatar
rocketphish rocketphish is offline
Planet Ottawa and beyond
 
Join Date: Feb 2009
Location: Greater Ottawa
Posts: 14,193
Quote:
Originally Posted by ParkRiverProperties View Post
Many of our projects have been faced with a number of delays in planning and a shift in market conditions (as have many others in the industry). We are hopeful for a return to an economic environment that enables us to get started on our high-rise projects. A combination of what the different levels of government are doing to offset project costs is looking promising, but still requires alignment and timing to work out. Some of our projects are advancing in 2026, while others remain on hold for the time being.

We acquire properties with the intent to develop properties when there is a reasonable expectation of a positive outcome for all stakeholders - and are prepared to wait for that environment.

For this particular property, our approach is to ready the land for development so that it can advance as soon as conditions align. It is fair to say that having all 4 buildings under construction in the short/medium term is not realistic. We hope that having approvals in place will provide an opportunity to have activity on the site once the market supports the fundamentals.
Thank you for monitoring our forum and jumping into the discussion! It is certainly the case that many of your other projects weren't timed well with respect to the new economic and housing climate, and of course this was beyond your control. Sitting on all of your undeveloped land must be frustrating and expensive.

As for this latest project, might you be looking at taking advantage of the federal programs currently available to encourage the construction of affordable housing?
Reply With Quote
     
     
  #13  
Old Posted Jan 15, 2026, 6:48 PM
ParkRiverProperties ParkRiverProperties is offline
Registered User
 
Join Date: Sep 2020
Posts: 72
We are exploring options for relocating the recently built infill homes, but that will need to be further evaluated closer to the timelines for construction. The success of that process is highly contingent on where they would be relocated to (hydro interferences, travel routes, etc). We have provided some additional feedback on our projects on another comment, but feel free to reach out with any additional comments or questions.

Quote:
Originally Posted by Mousel View Post
Wow this is a crazy one. This sort of development pushing deeper into the existing low rise neighbourhood will definitely get people's backs up but it's hard to be opposed when it's so close to a transit station.

If I'm not mistaken this would see the demolition of multiple new infill houses which is interesting. Doesn't seem like this is a proposal that will go anywhere for some time, especially since it's Park River Properties.
Reply With Quote
     
     
  #14  
Old Posted Jan 15, 2026, 6:54 PM
ParkRiverProperties ParkRiverProperties is offline
Registered User
 
Join Date: Sep 2020
Posts: 72
For all of our projects we are looking at all options to find a pathway forward. Holding land, particularly land without any income, is not a great business model. That being said, our objectives are focused on the long-term view, and we believe the locations of our projects will serve us well in the long run.

There are some exceptional programs out there, but their availability is limited and the requirements seem to continue to be a moving target. We are hopeful that 2026 will be a stable year without significant changes with CMHC's programs, as most of them require a building to be designed around the financing program, which is difficult to manage when the requirements evolve every 6 months.

We have spent an inordinate amount of time looking at affordable housing solutions and hope to have some progress on that front with our first larger project to start later this year at 200 Baribeau. More on that one later

Quote:
Originally Posted by rocketphish View Post
Thank you for monitoring our forum and jumping into the discussion! It is certainly the case that many of your other projects weren't timed well with respect to the new economic and housing climate, and of course this was beyond your control. Sitting on all of your undeveloped land must be frustrating and expensive.

As for this latest project, might you be looking at taking advantage of the federal programs currently available to encourage the construction of affordable housing?
Reply With Quote
     
     
  #15  
Old Posted Jan 15, 2026, 6:56 PM
rumple-stilts rumple-stilts is offline
Registered User
 
Join Date: Jun 2019
Posts: 65
Given that the fed government Graham Spry property immediately adjacent to and north of the transit station across the street from this proposal is being disposed of also holds huge high-rise development potential, which would make this area massively densified.
Reply With Quote
     
     
  #16  
Old Posted Jan 15, 2026, 7:01 PM
SkeggsEggs SkeggsEggs is offline
Registered User
 
Join Date: May 2016
Posts: 403
Quote:
Originally Posted by ParkRiverProperties View Post
The project was designed to accommodate a potential future development on the adjacent lands. While the recent reconstruction of the Salus building following the flood makes this scenario unlikely in the near term, it remains a consideration that informed the design.

As for products delivered, the partners involved in Park River have delivered over 2,500 homes in the Ottawa-Gatineau region. We will be the first to admit that the timelines for our projects were not exactly drawn up this way when the company was started, but there have been more than a few "curve balls" dating back to 2020.
Thank you for the response! I will say I really love the pedestrian path through this connecting the parkland with Lion's! Hopefully some future development would enable a connection between that and the McRae parkette.
Reply With Quote
     
     
  #17  
Old Posted Jan 15, 2026, 7:19 PM
ParkRiverProperties ParkRiverProperties is offline
Registered User
 
Join Date: Sep 2020
Posts: 72
To support the transit station and continue to build on the solid fundamentals that Westboro has as a 15-minute community, we have designed this proposal to provide flexibility to grow as density increases.

We feel it's important to accommodate at grade uses that may originally be built as amenity spaces, but are suited to transition to retail uses over time (ie. Commercial along Tweedsmuir/Athlone). Having retail only along one side of Scott Street is not enough commercial uses to service the inbound density, and the commercial uses along Richmond are essentially at full capacity, with the exception of a few redevelopment sites.

We are encouraged by the opportunity for alternative uses like office and hotel, but these are highly dependent on market conditions. While the current market may not be right, we expect that this project will evolve over time and we are looking to have some flexibility to address these gaps in the market.

Quote:
Originally Posted by rumple-stilts View Post
Given that the fed government Graham Spry property immediately adjacent to and north of the transit station across the street from this proposal is being disposed of also holds huge high-rise development potential, which would make this area massively densified.
Reply With Quote
     
     
  #18  
Old Posted Jan 15, 2026, 7:23 PM
ParkRiverProperties ParkRiverProperties is offline
Registered User
 
Join Date: Sep 2020
Posts: 72
Thank you for the comment. We are continuing to explore options to do this, as that was the vision to help provide permeability from Winona to McRae without having to walk down to Scott or Richmond.

Quote:
Originally Posted by SkeggsEggs View Post
Thank you for the response! I will say I really love the pedestrian path through this connecting the parkland with Lion's! Hopefully some future development would enable a connection between that and the McRae parkette.
Reply With Quote
     
     
  #19  
Old Posted Jan 15, 2026, 7:26 PM
Harley613's Avatar
Harley613 Harley613 is offline
Registered User
 
Join Date: Jun 2009
Location: Aylmer, QC
Posts: 6,869
@ParkRiverProperties, I listed the towers at 30/30/41s on the mirror thread on Skyrise Ottawa. Can you confirm whether the penthouses are occupied space or mechanical only?

https://ottawa.skyrisecities.com/for...perties.42878/
__________________
Instagram: https://www.instagram.com/the.harleydavis/
Reply With Quote
     
     
  #20  
Old Posted Jan 15, 2026, 8:09 PM
ParkRiverProperties ParkRiverProperties is offline
Registered User
 
Join Date: Sep 2020
Posts: 72
There are proposed amenity spaces on all of the mechanical penthouse levels.

Quote:
Originally Posted by Harley613 View Post
@ParkRiverProperties, I listed the towers at 30/30/41s on the mirror thread on Skyrise Ottawa. Can you confirm whether the penthouses are occupied space or mechanical only?

https://ottawa.skyrisecities.com/for...perties.42878/
Reply With Quote
     
     
This discussion thread continues

Use the page links to the lower-right to go to the next page for additional posts
 
 
Reply

Go Back   SkyscraperPage Forum > Regional Sections > Canada > Ontario > Ottawa-Gatineau > Downtown & Urban Ottawa
Forum Jump



Forum Jump


All times are GMT. The time now is 7:24 AM.

     
SkyscraperPage.com - Privacy Statement - Top

Powered by vBulletin® Version 3.8.7
Copyright ©2000 - 2026, vBulletin Solutions, Inc.