HomeDiagramsDatabaseMapsForum About
     

Go Back   SkyscraperPage Forum > Regional Sections > Canada > Ontario > Ottawa-Gatineau > Business, Politics & the Economy


Reply

 
Thread Tools Display Modes
     
     
  #161  
Old Posted Jan 24, 2023, 8:55 PM
Marcus CLS Marcus CLS is offline
Registered User
 
Join Date: Nov 2007
Posts: 365
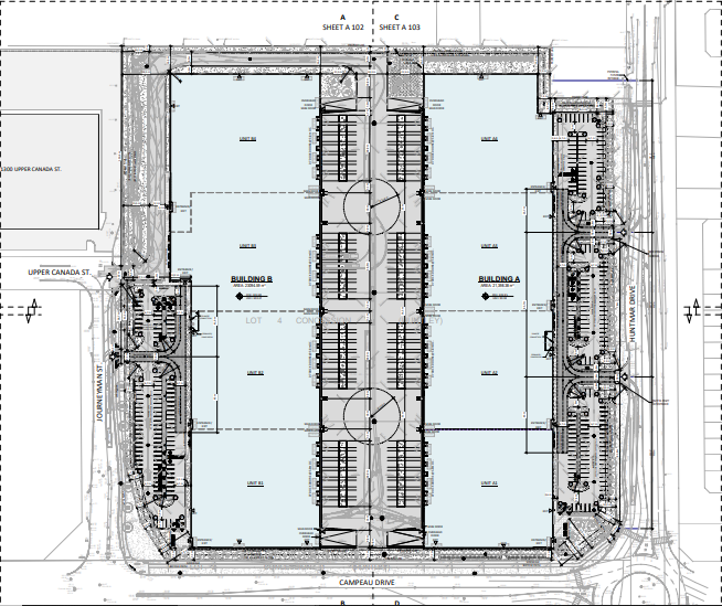
405 Huntmar Drive Kanata West Business Park

New site plan control application for 2 new warehouses. Developer is Rosefellow of Montreal

https://devapps.ottawa.ca/en/applica...2-0186/details
Reply With Quote
     
     
  #162  
Old Posted Jan 24, 2023, 9:07 PM
J.OT13's Avatar
J.OT13 J.OT13 is offline
Moderator
 
Join Date: Mar 2012
Location: Ottawa
Posts: 27,610
Quote:
Originally Posted by Marcus CLS View Post
New site plan control application for 2 new warehouses. Developer is Rosefellow of Montreal

https://devapps.ottawa.ca/en/applica...2-0186/details
Very car oriented use, steps away from a multi-Billion future O-Train extension.

We must extend the O-Train to encourage mixed-use, walkable 15-minute communities, but then we get proposals like these, power centres and low-density residential, all segregated as they've been for the last 40 years.
Reply With Quote
     
     
  #163  
Old Posted Jan 24, 2023, 11:00 PM
Williamoforange's Avatar
Williamoforange Williamoforange is offline
Registered User
 
Join Date: Sep 2020
Location: Ottawa
Posts: 833
Quote:
Originally Posted by Marcus CLS View Post
New site plan control application for 2 new warehouses. Developer is Rosefellow of Montreal

https://devapps.ottawa.ca/en/applica...2-0186/details
Industrial building in an industrial park...That has bike paths, Bike parking, Sidewalks, Separate entrance for Freight trucks off a side road meant to handle them.

That is pretty damn pedestrian centered for an industrial building. This is about as unseparated as one can get for this level of industrial building, as this doesn't look like it will Light industrial use.

Lastly, it will put one of the few employment sectors that will still need daily commuters (assuming WFH sticks) within walking distance of mass transit .
Reply With Quote
     
     
  #164  
Old Posted Jan 25, 2023, 2:02 PM
J.OT13's Avatar
J.OT13 J.OT13 is offline
Moderator
 
Join Date: Mar 2012
Location: Ottawa
Posts: 27,610
Quote:
Originally Posted by Williamoforange View Post
Industrial building in an industrial park...That has bike paths, Bike parking, Sidewalks, Separate entrance for Freight trucks off a side road meant to handle them.

That is pretty damn pedestrian centered for an industrial building. This is about as unseparated as one can get for this level of industrial building, as this doesn't look like it will Light industrial use.

Lastly, it will put one of the few employment sectors that will still need daily commuters (assuming WFH sticks) within walking distance of mass transit .
21 bicycle spots and 193 vehicle parking spaces. That still very much car oriented with little regard to cyclists.

At least the east building has an entrance on the corner closest to the transit station. Could be worse, for sure, but I'm not giving them full points on this one.

I get that industrial uses should have access to good transit as well, but the level of investment in rapid transit should translate into higher densities, especially in areas where no one lives at the moment. This is where developers can build to their heart's desire without running into "NIMBYs".

EDIT: site plan for those who did not check the docs.

Reply With Quote
     
     
  #165  
Old Posted Feb 21, 2023, 1:37 PM
J.OT13's Avatar
J.OT13 J.OT13 is offline
Moderator
 
Join Date: Mar 2012
Location: Ottawa
Posts: 27,610
H&R selling Ottawa ONE60 Elgin St. office tower for $277M

Don Wilcox, February 14. 2023
Managing Editor, RENX


H&R REIT (HR-UN-T) announced Tuesday it has an agreement to sell one of its premiere remaining office properties, the million-square-foot downtown ONE60 Elgin complex in Ottawa.

H&R made the announcement in its 2022 year-end financial report, listing the sale price as $277 million.

While the trust says that is “in line” with ONE60 Elgin's IFRS value at the end of 2022, company president Philippe Lapointe said H&R took a $25-million writedown on the asset during Q4 as part of a $194-million writedown on its office portfolio. He made the comment in response to an analyst question during H&R's Tuesday morning Q4 2022 conference call with analysts and investors.

The purchaser is not identified.

The transaction, slated to close in April, is the latest divestment for H&R as it transforms from a diversified REIT to specialize mainly in industrial and multiresidential properties. It spun off Primaris REIT as a stand-alone retail entity in January 2021 and has made a series of major office divestments.

“Since announcing our strategic plan, H&R has sold off or spun off over $4.2 billion worth of office and retail including the Primaris spinoff, and over $1.8 billion excluding the spinoff,” Lapointe said.

“This includes 21 office and retail assets encompassing over 4.2 million square feet of space, when excluding the Primaris spinoff.”

The ONE60Elgin office property

ONE60 Elgin is the third-largest office property in Ottawa, and is LEED EB certified for its operations and maintenance.

The 27-storey office tower features a large footprint and floor plates of about 40,000 square feet.

It was constructed in 1971 and extensively renovated around 2018, including the addition of a striking, curved glass wall which surrounds the main entrance into the building. The wall stands 39x115 feet and floods the entryway with light.

The location is just across Elgin Street from Ottawa City Hall and a few blocks south of Parliament Hill. It has been occupied mainly by government and public sector tenants, though the current occupancy level was not immediately clear.

It also contains ground-level retail.

H&R's repositioning activity

H&R's ongoing repositioning includes several other major transactions, including the sales of the iconic Bow Tower in Calgary and the Bell office campus in Mississauga in Q3 2021 (which fetched $1.67 billion).

In August 2022, the REIT reported a series of transactions for office and retail properties valued at $167.8 million, including 100 Wynford Dr. In Toronto. That office property was transacted for $120.7 million.

H&R's office portfolio is broken down into three segments by management: about $750 million worth of properties which are undergoing or slated for rezoning to renovate or redevelop as multiresidential assets; a portfolio composed mainly of two large assets in New York and Houston; and the remaining $1 billion of properties in Canada which are "not subject to rezoning" and will all likely be sold.

There is also some retail remaining in the H&R portfolio to be sold, but CEO Tom Hofstedter said this will be divested slowly to continue providing funds for other activities, and when conditions are right.

“There is no urgency," he said. "If we pull through on the office, we have a little bit of retail that we expect to sell. It will be slow and steady. There is no reason to sell pre-emptively at this point in time. We will do so as we require funds.”

Q4 2022 financial highlights

While H&R's overall 2022 financials were impacted by the spinoff of Primaris REIT (which included 27 retail properties), management lauded the success of what Hofstedter calls its "simplification strategy."

As of Dec. 31, the REIT held 11.4 billion in assets

Activities during 2022 enabled H&R to lower its debt-to-total-assets (at the REIT's proportionate share) to about 44 per cent, down from 46.6 per cent as of Dec. 31, 2021.

The divestments are also helping to buy back H&R stock and fund its development projects in both Canada and the U.S.

Net income rose from $597.9 million in 2021 to 844.8 million in 2022.

It absorbed a total of $224.5 million in fair value write-downs across its entire portfolio during Q4, but for the year its values rose $546.1 million.

NAV per unit rose to $21.80 from $17.70 at the end of 2021.

Funds from operations dipped to $0.310 per unit from $0.347 on the quarter, and to $1.173 from $1.529 for the year.

https://renx.ca/hr-sell-downtown-ott...ice-tower-277m
Reply With Quote
     
     
  #166  
Old Posted Mar 15, 2023, 3:14 PM
J.OT13's Avatar
J.OT13 J.OT13 is offline
Moderator
 
Join Date: Mar 2012
Location: Ottawa
Posts: 27,610
Quote:
Familiar government buildings in downtown core would be better off demolished, industry insiders say

David Sali, OBJ
March 14, 2023


Insiders Only



Building owners, property managers and other Ottawa commercial real estate insiders itching to get a sense of which assets the federal government plans to offload from its downtown office portfolio in the wake of COVID-19 will have to wait a little longer.
https://obj.ca/familiar-government-b...-insiders-say/
Reply With Quote
     
     
  #167  
Old Posted Mar 19, 2023, 10:00 PM
rocketphish's Avatar
rocketphish rocketphish is offline
Planet Ottawa and beyond
 
Join Date: Feb 2009
Location: Greater Ottawa
Posts: 14,195
Toronto’s Nexus Industrial REIT acquires new Ford distribution centre in Casselman for $117M

David Sali, OBJ
March 16, 2023 | 2:56 PM ET




A Toronto-based real estate firm is making its first big move into the Eastern Ontario market, acquiring a major automotive distribution centre for more than $116 million.

Nexus Industrial Real Estate Investment Trust finalized an agreement earlier this month to buy a newly constructed class-A, 532,000-square-foot industrial building in Casselman from Quebec-based property developer Rosefellow for $116.8 million.

Located just south of Hwy. 417 about 56 kilometres southeast of Ottawa, the facility is slated to open this spring and will serve as a parts distribution warehouse for Ford Motor Co., which has a 15-year lease on the property.

“It becomes one of our trophy assets,” Nexus CEO Kelly Hanczyk told OBJ on Thursday.

It’s also the first significant addition to Nexus’s portfolio in the eastern part of the province. Created in 2017 from the merger of Toronto’s Edgefront REIT and Montreal-based Nobel REIT, Nexus has an ownership stake in about 115 office, industrial and retail properties across Canada with a total footprint of more than 113 million square feet.

Most of its holdings, however, are in the Greater Toronto Area, southwestern Ontario and southern and eastern Quebec. Before the Casselman deal closed, Nexus’s portfolio included just two properties in eastern Ontario and western Quebec – a 38,000-square-foot industrial building in Cornwall and a 68,000-square-foot office building on Laval Street in Gatineau.

“It breaks us into the Ottawa (regional) market a little bit,” said Hanczyk. “It kind of spreads us right across the Ontario market.”

Ford recently told OBJ the Casselman warehouse will store up to 45,000 automotive parts and serve 154 dealerships in Eastern Canada. The automaker has the option to order up more industrial space at the 35-acre site should it be required.

“It really depends on whether they need to expand in the future,” Hanczyk said.

Now that it’s established a bit of a beachhead in the region, Nexus plans to keep looking for other potential acquisition targets in and around the nation’s capital, the CEO added.

While Ottawa’s industrial availability rate ticked up nearly a full percentage point in 2022, average rents continue to rise and the region remains a hotbed of e-commerce warehousing activity due to its easy access to major highways and close proximity to Toronto and Montreal.

“Ottawa is a fairly major centre,” Hanczyk said. “Overall, with the warehouse distribution demand, some of the smaller markets, like Ottawa and London, are having their moment and I think they’ll continue to stay strong. It would be a good market for us to grow in, for sure.”

https://obj.ca/torontos-nexus-indust...lman-for-117m/
Reply With Quote
     
     
  #168  
Old Posted Apr 3, 2023, 11:30 PM
rocketphish's Avatar
rocketphish rocketphish is offline
Planet Ottawa and beyond
 
Join Date: Feb 2009
Location: Greater Ottawa
Posts: 14,195
A rendering of the proposed Rosefellow warehouse development at 405 Huntmar Drive in the Kanata West Business Park:

Quote:
Going west: Developers plan major new industrial projects in red-hot Kanata market

David Sali, OBJ
April 3, 2023 | 4:27 PM ET




More than half a million square feet of industrial space is in the works at two sites in west Kanata as developers scramble to satisfy demand for warehousing and light-manufacturing facilities in the city’s tightest submarket. Montreal-based developer Rosefellow says it hopes to start constructing a pair of industrial buildings later this fall on a 21.4-acre parcel of land at 405 Huntmar Dr., north of the Tanger Outlets mall. The company’s plans call for a 230,000-square-foot distribution and warehouse facility and another building covering 248,000 square feet at the prime development site, which is fully serviced and zoned for general and light industrial use. Rosefellow bought the property, which is located just a few hundred meters from Highway 417 and the Canadian Tire Centre, from the Taggart Group of Companies last year for $25.7 million.

Mike Jager, the Montreal firm’s co-founder, said the site’s proximity to major transportation routes makes it an ideal home for logistics companies looking for distribution space. In addition, he noted it’s easily accessible to nearby restaurants and retail amenities such as the Tanger mall and is just a short distance from several residential developments. “This site, when it came up, we said, ‘We’ve got to find a way to acquire it,’” Jager told OBJ on Monday. Rosefellow is hoping to receive final site plan approval from the city shortly and aims to have shovels in the ground by October, with occupancy slated for late 2024.

The company is developing the project on spec. Jager says he has no worries about filling the buildings, which will each include 28 loading docks and feature 32-foot ceilings. “Businesses don’t have three years (to plan),” he said. “When they decide they need more space, they need it within the next six months.

“Vacancy is so low in that market now that we believe by the time we’re done construction on both, we should be at about 80 per cent leased,” Jager added. “We’re going to see huge demand for that space.” The latest Ottawa industrial market report from Colliers International seems to support Jager’s upbeat outlook. According to the report released Friday, the availability rate for industrial space in the Kanata/Deep West submarket in the first three months of 2023 was 0.6 per cent, down from 1.1 per cent in the fourth quarter of 2022. Meanwhile, average asking net rents in the Kanata area have jumped from $13.10 per square foot a year ago to $18.65 in March. Ottawa real estate executive Dominic Bonin points to a couple of factors that are fuelling demand for west-end industrial space.

Bonin, the vice-president of asset management for Guelph-based Skyline Industrial REIT, says some clients that have traditionally set up shop in the east or south ends of the city are establishing satellite operations farther west to service customers in Kanata and growing nearby communities like Stittsville.

Other tenants, meanwhile, are gravitating toward new developments like Rosefellow’s in a “flight to quality” as they vacate aging properties with lower ceilings and fewer amenities. Bonin, whose firm is an investor in the Kanata project, said the new buildings will provide a “pure industrial option” for customers such as building supply companies, HVAC operations and tech firms looking for warehousing and light manufacturing space.

With high ceilings, large bays and plenty of parking, the project will be designed to accommodate a wide range of potential tenants, Jager added. “This kind of checks off those boxes,” he explained.

Skyline REIT has the option to purchase the buildings outright and will likely do so once they’re fully leased, Bonin said. The real estate investment trust once owned more than a million square feet of small-bay industrial space in Ottawa but sold its last remaining property on Hunt Club Road last month.

“This is giving us a great opportunity to acquire class-A, modern industrial real estate,” said Bonin. “There’s never a lot of opportunities to acquire that quality of an asset in this market.” As Ottawa continues to ride a wave of demand for logistics space from e-commerce giants like Amazon, Rosefellow and Skyline are also teaming up on another project in Barrhaven. Last year, the firms bought a 21-acre site at 545 Dealership Dr., east of Highway 416 and a few blocks south of Amazon’s 2.8-million-square-foot fulfilment centre that opened in 2021.

Jager says Rosefellow wants to erect a pair of 150,000-square-foot industrial buildings at the Barrhaven property, which is just south of the 50-acre site where Ottawa-based Colonnade BridgePort plans to construct its four-building Gateway Industrial Park. “We love the market,” said Jager, whose firm also built the new 532,000-square-foot Ford distribution centre in Casselman, which it recently sold for nearly $117 million.

“As long as vacancy rates are lower, and if demand is high and we can still acquire sites at a reasonable price, then we’re definitely all in.” Meanwhile, another local builder is laying the groundwork for an industrial project in Kanata not far from Rosefellow’s development. SpaceWerx Corp. president Jeff Moffatt says his firm aims to start construction this summer on a 56,000-square-foot building at 101 Nipissing Ct., just west of the Tanger Outlets mall.

Like Jager, Moffatt said he believes the three-acre site is an ideal fit for light industrial tenants that need quick and easy access to the Queensway. “You’re literally 45 seconds from the highway,” Moffatt said. Moffatt said he’s hoping the single-level structure, which will have 30- to 32-foot ceilings, will be completed by next summer.

He said the development is drawing interest from tech companies looking for light manufacturing space as well as plumbing, heating and HVAC firms that need warehouse and distribution facilities.

“Those kinds of service industries that need warehouse space, that have trade customers but also have some consumer-facing business, we’re seeing a lot of that activity,” Moffatt explained, adding more than half of the building is already pre-leased. While the Amazons of the world eat up huge swaths of real estate at multimillion-square-foot distribution centres, Moffatt said much of the demand for sites like his is being driven by smaller tenants who require between 10,000 and 30,000 square feet of space and want modern amenities. “They don’t need a massive building – they just need enough to serve their needs,” Moffatt said. “A lot of our inventory in this city is dated. It’s low ceiling, it’s not super-efficient, it’s kind of located in business parks that are not really amenable to fulfilment and last-mile kind of uses.”

https://obj.ca/going-west-developers...kanata-market/

Last edited by rocketphish; Jul 6, 2023 at 7:25 PM.
Reply With Quote
     
     
  #169  
Old Posted May 1, 2023, 3:34 AM
Catenary Catenary is offline
Registered User
 
Join Date: Dec 2012
Posts: 1,385
I'm split between this being Real Estate or Retail news, but I think this is more appropriate. Hillary's Cleaners at Bank and Cameron (OOS) has closed, and the property is signed as being for sale. As interesting as the building is, I have to imagine it is a tear down. It's an interesting lot for redevelopment, I just have to hope that it isn't a massive cleanup effort because of it's history.
Reply With Quote
     
     
  #170  
Old Posted May 1, 2023, 1:12 PM
J.OT13's Avatar
J.OT13 J.OT13 is offline
Moderator
 
Join Date: Mar 2012
Location: Ottawa
Posts: 27,610
Quote:
Originally Posted by Catenary View Post
I'm split between this being Real Estate or Retail news, but I think this is more appropriate. Hillary's Cleaners at Bank and Cameron (OOS) has closed, and the property is signed as being for sale. As interesting as the building is, I have to imagine it is a tear down. It's an interesting lot for redevelopment, I just have to hope that it isn't a massive cleanup effort because of it's history.
That must have been a gas station. It will be hard to redevelop without the brownfield grant and low to mid rise zoning.

https://www.google.com/maps/@45.3911...7i16384!8i8192
Reply With Quote
     
     
  #171  
Old Posted May 1, 2023, 3:41 PM
J.OT13's Avatar
J.OT13 J.OT13 is offline
Moderator
 
Join Date: Mar 2012
Location: Ottawa
Posts: 27,610
Groupe Mach president: We're buying Canadian office properties

Danny Kucharsky, RENX
May 1, 2023




Fresh from its acquisition of one of Ottawa’s largest office buildings, Montreal’s Groupe Mach is casting its eye westward to Vancouver and Calgary in its quest to become a coast-to-coast commercial real estate owner and operator.

Last week, Mach and family office investor Sarees Investments closed on the $277-million acquisition from H&R REIT of the 27-storey ONE60 Elgin, the third-largest office property in Ottawa, with one million square feet.

"If we find the right product, we’d like to definitely be coast-to-coast if we can,” Groupe Mach president Vincent Chiara told RENX. “We have a lot of our tenants that would like to accompany us. They have office space coast-to-coast and they’d like to be part of our team.”

Earlier this year, Mach entered the Halifax market with its $40-million purchase from Choice Properties of the 22-storey 1801 Hollis St., one of the largest office buildings in downtown Halifax.

ONE60 is Mach’s 16th acquisition in the Ottawa area in than two years, positioning the developer among the largest real estate owners in the city.

With its acquisition of several office properties from Cominar REIT a year ago, Mach has become the largest office owner in Quebec City. It is also one of the largest players in the Montreal market.

Fresh from its acquisition of one of Ottawa’s largest office buildings, Montreal’s Groupe Mach is casting its eye westward to Vancouver and Calgary in its quest to become a coast-to-coast commercial real estate owner and operator.

Last week, Mach and family office investor Sarees Investments closed on the $277-million acquisition from H&R REIT of the 27-storey ONE60 Elgin, the third-largest office property in Ottawa, with one million square feet.

"If we find the right product, we’d like to definitely be coast-to-coast if we can,” Groupe Mach president Vincent Chiara told RENX. “We have a lot of our tenants that would like to accompany us. They have office space coast-to-coast and they’d like to be part of our team.”

Earlier this year, Mach entered the Halifax market with its $40-million purchase from Choice Properties of the 22-storey 1801 Hollis St., one of the largest office buildings in downtown Halifax.

ONE60 is Mach’s 16th acquisition in the Ottawa area in than two years, positioning the developer among the largest real estate owners in the city.

With its acquisition of several office properties from Cominar REIT a year ago, Mach has become the largest office owner in Quebec City. It is also one of the largest players in the Montreal market.

Mach has acquired about 12M sq. ft. in past year[/B]

Chiara said Mach has integrated about 12 million square feet into its portfolio during the past 12 months and is looking at other acquisitions in Halifax, Quebec City, Montreal and Ottawa, where it already has teams in place.

“It’s a lot more simple once you’ve got the platform.”

ONE60 Elgin appealed to Mach for several reasons, including long WALTs (waited average lease terms) of just over eight years and creditworthy large tenants, including the federal government, Bell and Gowling WLG, which occupy about 80 per cent of the building.

It has a vacancy rate of only three per cent.

In addition, the price per square foot was “a fraction of replacement value, which is very comforting for us as investors.”

The building contains a ground-level food court “so it’s very inviting for off-the-street type clients.”

Why Mach likes Ottawa, ONE60 Elgin

Between $60 and $75 million was invested in 52-year-old ONE60 Elgin during the past four or five years, putting it “definitely up to par with regards to technology and the quality of the spaces.”

Renovations included the addition of a 39x115-foot curved glass wall which surrounds the main entrance.

ONE60 Elgin requires no work other than refreshing spaces tenants occupy, Chiara said. “It’s a tenants’ obligation, but we’re willing to help them get there if they need our financial support.”

Located across from Ottawa City Hall and a few blocks south of Parliament Hill, the building is LEED Gold EB certified for its operations and maintenance.

“It checked all the boxes for Groupe Mach and we’re still very bullish, regardless of what a lot of people are saying about where office space is going,” he said.

Chiara added Mach strongly believes in the long-term prospects for Ottawa.

Like Quebec City, the market is stable despite the fact its reliance on the public sector has declined in recent years: “In both cities, north of 60 per cent of the office space was occupied by the public service. I think it’s 30 per cent today.”

The public service has been replaced in large part by tech startups, the gaming industry, other computer-related industries and pharmaceutical firms.

Chiara remains a fan of the office sector

While much of the investment market has shied away from office of late, “our strategy has been and still is that we’re bullish about office,” Chiara explained.

“We don’t think it’s going to disappear. We think that there’s an expiry date on working from home and we’re going to get there in the next six, 12, 18 months.”

However, “office space as we know it will change” with an evolution to more collaborative and coworking spaces, Chiara says.

“There’s been a huge flight to quality with people moving from the C- and B-class buildings to B+- and A-class buildings. The gap in rent is usually not big enough for an employer not to want to take advantage of better-quality space.”

As a result, much of the obsolete inventory will disappear from the market and either be refitted or converted to residential buildings, which he says will be beneficial to downtown cores that need to densify and house “more warm bodies.”

With one of the issues in the current federal public servants’ strike involving the issue of remote work, Chiara says the federal government will need to step up its game to make offices more attractive to workers.

The biggest problem is that governments have historically gone to tender and rented space based on the cheapest cost, he said.

“That’s probably not the best strategy, especially now. You can’t make someone work in a cubicle with eight-foot walls around them. It’s not happening anymore. The quality of life has to be good.

"People have to want to go to the office.”

https://renx.ca/groupe-mach-presiden...coast-to-coast
Reply With Quote
     
     
  #172  
Old Posted May 2, 2023, 1:12 PM
Catenary Catenary is offline
Registered User
 
Join Date: Dec 2012
Posts: 1,385
Quote:
Originally Posted by J.OT13 View Post
That must have been a gas station. It will be hard to redevelop without the brownfield grant and low to mid rise zoning.

https://www.google.com/maps/@45.3911...7i16384!8i8192
You would think, but their Facebook page has some historical images showing "Hillary's Drive In Dry Cleaning". I think it may have been purpose built.

https://www.facebook.com/photo/?fbid...14384633812587
Reply With Quote
     
     
  #173  
Old Posted May 2, 2023, 1:28 PM
J.OT13's Avatar
J.OT13 J.OT13 is offline
Moderator
 
Join Date: Mar 2012
Location: Ottawa
Posts: 27,610
Quote:
Originally Posted by Catenary View Post
You would think, but their Facebook page has some historical images showing "Hillary's Drive In Dry Cleaning". I think it may have been purpose built.

https://www.facebook.com/photo/?fbid...14384633812587
Well I'll be! It was always a Hilary's.

I'd imagine dry cleaning might also have at least some level of ground remediating, jut not as extensive as a gas station.
Reply With Quote
     
     
  #174  
Old Posted May 2, 2023, 1:59 PM
RogueNacho RogueNacho is offline
Registered User
 
Join Date: Jun 2018
Location: Ottawa
Posts: 273
I work in environmental remediation and I can say that more often than not old dry cleaners are actually more of a concern for contamination than gas stations, though its impact is usually more noticeable in the groundwater versus the soil. Still, remediating an old dry cleaning property is not cheap, and whoever buys this site with intentions to redevelop will have to consider those costs.
Reply With Quote
     
     
  #175  
Old Posted May 2, 2023, 9:18 PM
J.OT13's Avatar
J.OT13 J.OT13 is offline
Moderator
 
Join Date: Mar 2012
Location: Ottawa
Posts: 27,610
Quote:
Originally Posted by RogueNacho View Post
I work in environmental remediation and I can say that more often than not old dry cleaners are actually more of a concern for contamination than gas stations, though its impact is usually more noticeable in the groundwater versus the soil. Still, remediating an old dry cleaning property is not cheap, and whoever buys this site with intentions to redevelop will have to consider those costs.
Interesting. Never would have thought dry cleaners are more problematic than gas stations. Thanks for the info!
Reply With Quote
     
     
  #176  
Old Posted May 17, 2023, 1:27 PM
rocketphish's Avatar
rocketphish rocketphish is offline
Planet Ottawa and beyond
 
Join Date: Feb 2009
Location: Greater Ottawa
Posts: 14,195
Building permits in Ottawa fall amid weak office demand
Return to the office has affect on building new commercial development, experts say

Arthur White-Crummey · CBC News
Posted: May 17, 2023 4:00 AM EDT | Last Updated: 2 hours ago


New building permits are down in Ottawa despite an uptick provincewide as the federal government's slow return to in-person work seems to be dampening the city's office market.

"We're seeing a pause, there's no question," said Michael Church, the managing director of commercial real estate company Avison Young Ottawa. "There is a definite decrease in demand for office space."

Statistics Canada reported this week that $302 million worth of building permits were issued in the Ontario part of the Ottawa-Gatineau metropolitan area in March. That's down 13.8 per cent from the same time last year.

Meanwhile, building permits issued were up three per cent in Ontario as a whole.

Both Ontario and Ottawa saw drops in residential building permits. While the value of non-residential building permits shot up 55 per cent provincewide in March compared to a year earlier, it fell by about 11 per cent in Ottawa.

The fall isn't a blip. For the 12 months ending in March, non-residential permits — which include those for commercial and industrial development — are down about 17 per cent in Ottawa compared to the 12 previous months.

Church said both the private sector and the public sector are struggling to figure out what returning to the office looks like post-pandemic. But in Ottawa, the federal government is the elephant in the room.

Plans for its massive workforce have an outsize weight on the market and set a precedent for other businesses in the city.

"It's just exacerbated in Ottawa and it's so visible in Ottawa because the federal government is such a big player in our market," Church said. "It presents a challenge for us."

In December, the federal government announced that public servants would have to return to in-person work for at least two or three days a week by the end of March. But the recent deal with Public Service Alliance of Canada workers could lead to more flexibility for some federal employees.

Church pointed to increases in vacancy levels across Ottawa commercial real estate. With so much underused space, there's little push for new development.

A January report by Colliers, another commercial real estate firm, found Ottawa's office availability rate reached 13.1 per cent in the last quarter of 2022, up from 8.7 per cent in the last quarter of 2019.

Church noted existing office properties are coming off of the market as they get redeveloped to fit other uses, such as housing. Over time, he expects the market to bounce back.

With federal workers spending more time working from home, small businesses that operate downtown have also felt the ripple effects.

Corinne Pohlmann from the Canadian Federation of Independent Business, who is based in Ottawa, noted retailers in the downtown cores of other cities can rely on a range of big employers with different return-to-work plans.

In Ottawa, they're largely at the mercy of one.

She noted foot traffic in downtown Ottawa is only beginning to pick up again.

"There is some hope now," Pohlmann said. "I think some have tried to hold on, knowing that some of the civil servants will now be coming back into the downtown core.

"But of course, again, it's not on a full-time, full-week basis, so we'll have to wait and see if it's enough."

https://www.cbc.ca/news/canada/ottaw...pace-1.6845238
Reply With Quote
     
     
  #177  
Old Posted Jun 7, 2023, 6:15 PM
rocketphish's Avatar
rocketphish rocketphish is offline
Planet Ottawa and beyond
 
Join Date: Feb 2009
Location: Greater Ottawa
Posts: 14,195
Real estate experts propose mixed-use solutions for high-end retail spaces vacated by Nordstrom

Sheila Reid, The Globe and Mail
June 7, 2023 | Published 8 hours ago


As department store chain Nordstrom makes its exit from Canada, landlords are facing a challenge to find new uses for more than a dozen sizable stores in high-end locations across the country.

The retailer is expected to vacate six Nordstrom and seven Nordstrom Rack locations by the end of the month, leaving landlords such as Cadillac Fairview and Oxford Properties to fill spaces that range in size from 30,000 to 230,000 square feet.

Landlords haven’t yet disclosed their plans for the locations in B.C., Alberta and Ontario, but commercial real estate brokers are predicting a shift from traditional department store anchors to more creative, mixed-use spaces.

“I don’t see it being backfilled by a lot of clothing retail, I see it more as experiential,” said Arlin Markowitz, executive vice-president of urban retail at CBRE.

He paints a picture of a mall that, for example, would blend spa and wellness, entertainment and retailers in multistorey former department stores divided to entice a broader array of tenants.

“I think the malls could benefit from having these kinds of new-age, experiential brands coming in,” Mr. Markowitz said. “It might draw a different type of customer to the centre, which would be accretive to the other retailers.”

In April, CBRE brokered a deal with First Capital REIT and Ballroom, a chain of bowling alleys with bars, live music and gaming. The new location will be at 1 Bloor St. E, on the same corner where First Capital is also looking to fill its 40,000-square-foot Nordstrom Rack space. Nordstrom Rack vacated that location on Monday.

Eric Sherman, First Capital’s vice-president of real estate, said the company hopes to make a tenant announcement in the next three to six months, with the space filled and active in the next 12 to 18 months.

“We’re definitely looking to do something more exciting here, maybe a little bit less conventional,” Mr. Sherman said, adding that it’s unlikely another discount brand will take over the space.

The malls where the six Nordstrom stores are located are among the highest-earning malls in the country, including the Pacific Centre in Vancouver, the Chinook Centre in Calgary and the Toronto Eaton Centre.

“I think it’s more of an opportunity to reposition these spaces away from department stores,” said Alice Dale, director for Altus Group’s national retail practice.

Ms. Dale said landlords have to be willing to spend the money to break up large box stores and turn them into something new.

West Edmonton Mall, the second largest mall in North America, has had success in filling a space once occupied by Sears with a 125,000-square-foot Toyota dealership. Ms. Dale said luxury car dealerships could slot in well at any one of the Nordstrom mall locations.

Nordstrom’s exit comes at a time when department stores in Canada and the United States are in decline. Target left the Canadian retail market in 2015, followed by Sears in 2018, both leaving behind large spaces that were awkward to convert.

John Crombie, executive managing director for retail services at commercial property brokers Cushman & Wakefield, was involved with a number of the Target spaces that were transitioned after the retailer left the market. He said the estimated cost of splitting up a 120,000-square-foot space ran as high as $17-million.

“We were better off tearing down the boxes because it wasn’t worth working around the existing blueprint,” he said.

According to Stan Krawitz, a principal at Avison Young, the cost to landlords to get spaces ready for new tenants generally ranges from $80 to $120 a square foot. Building new pedestrian corridors, which would be required if the space is split up, can approach $300 a foot.

But while smaller boxes might be expensive initially, the move could ultimately result in more revenue for landlords. Anchor tenants typically pay less rent per square foot than a tenant with a smaller footprint, and retailers covet space at Canada’s top malls.

“What Nordstrom did was to pick the very best of our retail,” Mr. Krawitz said. “And the very best of our retail has a waiting list.”

The former Nordstrom Rack at Yonge and Bloor is located at the busiest transit station in the country in an area that is expected to densify rapidly.

The situation presents a challenge for First Capital, Mr. Sherman said, “but I would say almost like a generational opportunity for a retailer to plant their flag in the heart of Toronto.”

https://www.theglobeandmail.com/busi...use-solutions/
Reply With Quote
     
     
  #178  
Old Posted Jun 14, 2023, 1:57 AM
rocketphish's Avatar
rocketphish rocketphish is offline
Planet Ottawa and beyond
 
Join Date: Feb 2009
Location: Greater Ottawa
Posts: 14,195
[September 2022] 444 Citigate Drive (south side of Systemhouse Street) in Barrhaven was purchased by Citigate Drive Nepean Inc. (CanFirst Capital Management) from Named Individuals for $45,786,700 or $915,185 per acre. It is zoned Business Park Industrial.

http://juteaujohnsoncomba.com/wp-con...mber-Sales.pdf
Reply With Quote
     
     
  #179  
Old Posted Jul 5, 2023, 1:44 AM
rocketphish's Avatar
rocketphish rocketphish is offline
Planet Ottawa and beyond
 
Join Date: Feb 2009
Location: Greater Ottawa
Posts: 14,195
Landlords, tenants ‘still figuring things out’ as downtown Ottawa’s office vacancy rate rises above 15%

David Sali, OBJ
July 4, 2023 5:06 PM ET


Ottawa’s office vacancy rate continued to climb in the second quarter, CBRE said in its latest Canadian market report, with the downtown office vacancy rate surpassing 15 per cent for the first time since the company began tracking the statistic in 1996. The commercial real estate firm said Tuesday the capital’s office vacancy rate rose to 13.6 per cent between April and the end of June, up from 12.3 per cent in the first quarter. The downtown core – which has persistently been the biggest trouble spot for building owners amid a widespread shift to remote and hybrid work during the pandemic – saw its office vacancy rate rise to 15.1 per cent from 13.2 per cent in the previous quarter. The increase comes as no surprise to District Realty CEO Jason Shinder, who says the situation facing downtown landlords could get worse before it gets better. “People are still figuring things out with respect to the balance between remote work and in-person work,” said Shinder, whose firm manages more than 1.7 million square feet of office space in the capital, including several buildings on Bank and Elgin streets. The veteran real estate executive added that while District Realty hasn’t seen a huge stampede of tenants looking to ditch their downtown space entirely, few occupants plan to increase their office footprints and there appear to be even fewer replacements eager to take over space others have vacated. “Since Shopify left, there has been no big technology company announcing a move downtown, and there doesn’t seem to be a lot of interest in coming downtown,” he said. Meanwhile, Ottawa’s suburban office vacancy rate increased to 12.4 per cent in the second quarter from 11.6 per cent in the previous three-month period.

Still, CBRE Ottawa managing director Louis Karam noted that fewer suburban tenants shed office space last quarter than earlier in 2023.

Unlike the downtown core, where negative net absorption rose from 186,000 square feet in the first quarter to nearly 292,000 last quarter, the suburban submarket saw office tenants return just over 80,000 square feet of space to landlands in the second quarter, down from more than 350,000 square feet in the previous three-month span. “Right now, with the remote work conversation, there is more interest in suburban office space than there is for downtown,” Karam told OBJ on Tuesday afternoon. No “magic bullet” will suddenly change that, Shinder said.

He expressed optimism that a wave of new multi-residential apartment projects in the core could attract younger residents who are more motivated to commute to nearby offices. But that alone won’t be enough to save many aging downtown towers that have outlived their usefulness, he added. “I don’t think we’ve hit the bottom,” Shinder said. “I think that before you see positive absorption, I think you’re going to see more reuse of space, whether it’s some buildings being demolished, whether it’s some buildings being reused as residential, whether it’s some buildings being reused for something totally different” such as medical labs or self-storage space. “I think that in order to solve the problem, we need to remove some inventory.” The downtown office exodus wasn’t just confined to lower-quality class-B and C space. Even more sought-after class-A buildings took a hit in the second quarter, with 70,000 square feet at Minto Place being put back on the market, along with 37,000 square feet at Manulife Place. But Karam said there are signs that Ottawa’s office market might be stabilizing after four consecutive quarters of negative absorption. Tenants vacated a total of 372,000 square feet of space in the second quarter, CBRE reported, down from more than 530,000 square feet in the first three months of the year.

In addition, the slowing pace of suburban vacancies increases suggests that the wave of downsizing in the tech sector may be subsiding, Karam said. “This is not going to get resolved over the next two quarters,” he added. “But I think that rate of (negative absorption) is going to start slowing down. We’ll see where we stand next year at the same time.” And Karam noted that compared with other parts of the country, Ottawa’s office market remains relatively robust. The national office vacancy rate rose to 18.1 per cent in the second quarter, CBRE said, up from 17.8 per cent in the first quarter. It was the highest level since the first quarter of 1994 when it was 18.6 per cent.

The downtown vacancy rate in Vancouver was 11.5 per cent in the second quarter, up from 10.4 per cent, while the rate in Toronto was 15.8 per cent, up from 15.3 per cent in the first quarter. Montreal saw its downtown rate rise to 17 per cent from 16.5 per cent. “Canadian office markets are grappling with a perfect storm of a recession threat, interest rate hikes, tech sector weakness, tenants rightsizing and new supply of office space,” CBRE said in a news release. “All of this is compounded by the continued uncertainty around remote work.” The increase in the overall rate came as the downtown office vacancy rate in the second quarter rose to 18.9 per cent compared with 18.5 per cent in the first quarter. The suburban office vacancy rate was 17.1 per cent, up from 16.9 per cent. Meanwhile, the downtown vacancy rate in Calgary was 31.5 per cent, down from 32 per cent in the first quarter. Waterloo Region’s downtown rate was 21.5 per cent compared with 22 per cent in the first three months of the year. Karam noted that Ottawa’s downtown office vacancy rate remains the second-lowest in the country behind Vancouver, while its overall vacancy rate is tied for second-lowest with Waterloo Region.

Meanwhile, average net rents in the capital are holding steady at just under $23 a square foot downtown and almost $16 per square foot outside the core. “Like everybody else across the country, we’re seeing a little bit of an increase in the vacancy rate, but it’s still a stable market,” he said.

– With files from the Canadian Press

https://obj.ca/landlords-tenants-sti...ises-above-15/
Reply With Quote
     
     
  #180  
Old Posted Jul 5, 2023, 1:17 PM
J.OT13's Avatar
J.OT13 J.OT13 is offline
Moderator
 
Join Date: Mar 2012
Location: Ottawa
Posts: 27,610
So why are we still seeing office buildings going up in Montreal and Toronto?

Even before the pandemic, we had one of the tightest markets, and local developers would not pull the trigger on new office buildings. Good move in hindsight, but certainly not because they knew something the rest of us didn't.
Reply With Quote
     
     
This discussion thread continues

Use the page links to the lower-right to go to the next page for additional posts
 
 
Reply

Go Back   SkyscraperPage Forum > Regional Sections > Canada > Ontario > Ottawa-Gatineau > Business, Politics & the Economy
Forum Jump



Forum Jump


All times are GMT. The time now is 8:25 AM.

     
SkyscraperPage.com - Privacy Statement - Top

Powered by vBulletin® Version 3.8.7
Copyright ©2000 - 2026, vBulletin Solutions, Inc.