HomeDiagramsDatabaseMapsForum About
     

Go Back   SkyscraperPage Forum > Regional Sections > United States > Texas & Southcentral > Austin


Reply

 
Thread Tools Display Modes
     
     
  #1701  
Old Posted Nov 15, 2019, 11:48 PM
Novacek Novacek is offline
Registered User
 
Join Date: Jan 2013
Posts: 2,571
Quote:
Originally Posted by The ATX View Post
That's would be it I guess. The permit actually calls it "Domain Point". They probably came up with that name after they tossed out "Domain Adjacent."
The renamed Stonecreek to Domain Point last year.

https://www.bizjournals.com/austin/n...ys-office.html
Reply With Quote
     
     
  #1702  
Old Posted Nov 21, 2019, 6:05 PM
murfnut murfnut is offline
Registered User
 
Join Date: Dec 2018
Posts: 130
This is from the morning of the 20th. In the afternoon of the 20th, the circle of trees/bushes were cleared and a second crane base was installed for the Bowen in the hole to the right of the first crane base.
Reply With Quote
     
     
  #1703  
Old Posted Nov 21, 2019, 6:43 PM
zrx299 zrx299 is offline
Registered User
 
Join Date: Jan 2019
Location: Austin, TX
Posts: 532


Flurry of activity today. Remove the '?1' at the end of the image link if you want the full size version.
Reply With Quote
     
     
  #1704  
Old Posted Nov 21, 2019, 6:45 PM
Austin1971 Austin1971 is offline
Registered User
 
Join Date: Jun 2011
Posts: 828
D

Last edited by Austin1971; Jan 25, 2020 at 12:41 AM.
Reply With Quote
     
     
  #1705  
Old Posted Nov 21, 2019, 8:29 PM
murfnut murfnut is offline
Registered User
 
Join Date: Dec 2018
Posts: 130
Quote:
Originally Posted by Austin1971 View Post
Does anyone know how tall the Indeed tower is?
Its around 185 feet tall. Its 11 stores tall, this picture gives you an idea how short it is compared to the other towers

Reply With Quote
     
     
  #1706  
Old Posted Nov 21, 2019, 8:36 PM
Austin1971 Austin1971 is offline
Registered User
 
Join Date: Jun 2011
Posts: 828
[

Last edited by Austin1971; Jan 25, 2020 at 12:41 AM.
Reply With Quote
     
     
  #1707  
Old Posted Nov 21, 2019, 8:36 PM
KevinFromTexas's Avatar
KevinFromTexas KevinFromTexas is offline
Meh
 
Join Date: Jul 2001
Location: Austin,TX<-->Dripping Springs,TX<-->Birmingham, AL<-->Warm Springs,GA
Posts: 57,054
Quote:
Originally Posted by Austin1971 View Post
Does anyone know how tall the Indeed tower is?
181 feet with 11 floors, according to the elevations.

EDIT: murfnut beat me to it before the page refreshed.
__________________
My girlfriend has a poodle named Kevin.
Reply With Quote
     
     
  #1708  
Old Posted Nov 21, 2019, 9:08 PM
atxsnail atxsnail is offline
Registered User
 
Join Date: Feb 2014
Posts: 595
Quote:
Originally Posted by murfnut View Post
Its around 185 feet tall. Its 11 stores tall, this picture gives you an idea how short it is compared to the other towers

Do the new reassigned tower numbers now reflect the expected order of construction?
Reply With Quote
     
     
  #1709  
Old Posted Nov 21, 2019, 9:31 PM
murfnut murfnut is offline
Registered User
 
Join Date: Dec 2018
Posts: 130
Quote:
Originally Posted by atxsnail View Post
Do the new reassigned tower numbers now reflect the expected order of construction?
Maybe, stonelake shows all four towers but hpix is only marketing towers 2 and 3. So I am thinking that is the order.

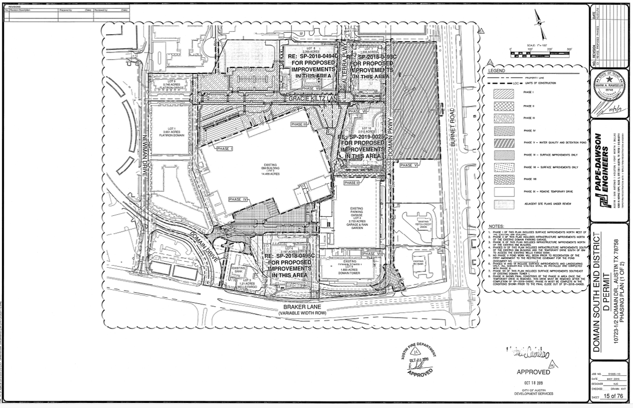
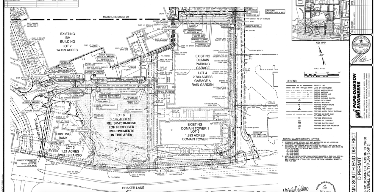
Here is a picture of the phasing plan for the South End District as far as the infrastructure to support the towers. We are concerned about phase4 on this photo (south side). No idea how to reach the parking garage or reach it without any additional flat tires. Some of all of phases4 and on need to be done before they can start Tower 3.



UPDATED THIS TO INCLUDE THE UTILITY PAGE THAT EFFECTS TOWER 3
Reply With Quote
     
     
  #1710  
Old Posted Nov 21, 2019, 9:49 PM
KevinFromTexas's Avatar
KevinFromTexas KevinFromTexas is offline
Meh
 
Join Date: Jul 2001
Location: Austin,TX<-->Dripping Springs,TX<-->Birmingham, AL<-->Warm Springs,GA
Posts: 57,054
I kind of wish they'd part ways with the numbering system and give them actual names.
__________________
My girlfriend has a poodle named Kevin.
Reply With Quote
     
     
  #1711  
Old Posted Nov 24, 2019, 11:59 PM
zrx299 zrx299 is offline
Registered User
 
Join Date: Jan 2019
Location: Austin, TX
Posts: 532


11/24/2019

Cranes are ready to get to work.
Reply With Quote
     
     
  #1712  
Old Posted Nov 25, 2019, 12:24 AM
The ATX's Avatar
The ATX The ATX is online now
Moderator
 
Join Date: May 2006
Location: Right here, right now
Posts: 12,730
Quote:
Originally Posted by zrx299 View Post


11/24/2019

Cranes are ready to get to work.
Awesome. This was a good weekend for cranes.
__________________
Follow The ATX on X:
https://x.com/TheATX1

Things will be great when you're downtown.
Reply With Quote
     
     
  #1713  
Old Posted Nov 25, 2019, 12:40 AM
the Genral's Avatar
the Genral the Genral is offline
Registered User
 
Join Date: Jun 2009
Location: Between RRock and a hard place
Posts: 4,474
I don't see a crane operator station on either of these cranes, in fact I don't see any ladders. Are they installed later or will these be remote controled? Maybe they are there and I'm just not seeing them.
Reply With Quote
     
     
  #1714  
Old Posted Nov 25, 2019, 3:46 AM
zrx299 zrx299 is offline
Registered User
 
Join Date: Jan 2019
Location: Austin, TX
Posts: 532
.
Reply With Quote
     
     
  #1715  
Old Posted Nov 25, 2019, 2:31 PM
Billy Cannon Billy Cannon is offline
Registered User
 
Join Date: Mar 2019
Posts: 73
Quote:
Originally Posted by the Genral View Post
I don't see a crane operator station on either of these cranes, in fact I don't see any ladders. Are they installed later or will these be remote controled? Maybe they are there and I'm just not seeing them.
Tower cranes might not be complete yet. They could use that rubber tire crane on the ground to set the cab of the cranes.
Reply With Quote
     
     
  #1716  
Old Posted Nov 25, 2019, 2:35 PM
We vs us We vs us is offline
Registered User
 
Join Date: Sep 2015
Location: Austin, TX
Posts: 3,601
Drone cranes!
Reply With Quote
     
     
  #1717  
Old Posted Nov 25, 2019, 3:29 PM
zrx299 zrx299 is offline
Registered User
 
Join Date: Jan 2019
Location: Austin, TX
Posts: 532


Does this count? The far crane in the bigger picture was rotated around this morning
Reply With Quote
     
     
  #1718  
Old Posted Nov 25, 2019, 7:57 PM
The ATX's Avatar
The ATX The ATX is online now
Moderator
 
Join Date: May 2006
Location: Right here, right now
Posts: 12,730
Here's another new site plan for Broadmoor. This one is for two 7-story apartment buildings.

https://abc.austintexas.gov/attachme...WnvMptMA%3D%3D
__________________
Follow The ATX on X:
https://x.com/TheATX1

Things will be great when you're downtown.
Reply With Quote
     
     
  #1719  
Old Posted Nov 26, 2019, 7:32 AM
The ATX's Avatar
The ATX The ATX is online now
Moderator
 
Join Date: May 2006
Location: Right here, right now
Posts: 12,730
Here's an update about what we know about Broadmoor projects.

Block L Office Tower #1 - 25-Stories
From CBRE listing, no permits filed - could be first tower to take advantage of ZC to 360' height

Block L Office Tower #2 - 19-Stories
From CBRE listing, no permits filed

Block A Office Tower - 14-Stories*
Site plan filed

Block A Residential Tower - 12-Stories/355 Units
Site plan filed

Block F Phase I Apartments - 7-Stories/425 Units**
Site Plan filed

Block F Phase II Apartments - Two 7-Story Apt. Buildings**/537 Units
Site plan filed

*CBRE has a listing for an 8-story office building in Block A. But the only office building in the Block A site plan is for the 14-story office building listed above. The 8-story building plans could have changed to 14-stories, or a separate site plan could be filed at a future date for the 8-story building.

**There are two Block F site plans. There is some duplicate info in them, and it's not completely clear as to how many buildings are being built.
__________________
Follow The ATX on X:
https://x.com/TheATX1

Things will be great when you're downtown.
Reply With Quote
     
     
  #1720  
Old Posted Dec 3, 2019, 6:09 AM
The ATX's Avatar
The ATX The ATX is online now
Moderator
 
Join Date: May 2006
Location: Right here, right now
Posts: 12,730
The site plan for the two seven-story Broadmoor Block F apartment buildings was posted for AULCC.



ftp://ftp.ci.austin.tx.us/ATD_AULCC/.../191212/PLANS/
__________________
Follow The ATX on X:
https://x.com/TheATX1

Things will be great when you're downtown.
Reply With Quote
     
     
This discussion thread continues

Use the page links to the lower-right to go to the next page for additional posts
 
 
Reply

Go Back   SkyscraperPage Forum > Regional Sections > United States > Texas & Southcentral > Austin
Forum Jump



Forum Jump


All times are GMT. The time now is 4:19 PM.

     
SkyscraperPage.com - Privacy Statement - Top

Powered by vBulletin® Version 3.8.7
Copyright ©2000 - 2026, vBulletin Solutions, Inc.