HomeDiagramsDatabaseMapsForum About
     

Go Back   SkyscraperPage Forum > Regional Sections > Canada > Alberta & British Columbia > Vancouver > Metro Vancouver & the Fraser Valley


Reply

 
Thread Tools Display Modes
     
     
  #941  
Old Posted Jul 25, 2016, 10:43 PM
officedweller officedweller is online now
Registered User
 
Join Date: Jul 2001
Location: Vancouver
Posts: 41,023
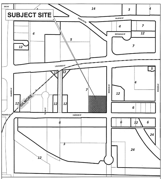
New project immediately east of ONNI's Gilmore Station project:

http://www.vancouvermarket.ca/2016/0...rentwood-area/

Quote:
The preliminary proposal by Imani Development, is for a mixed use development comprised of retail, office and a highrise residential tower, to a maximum density of 6.0 FAR, with a residential density of 5.0 FAR.

The application notes that the tower height would be 431 feet, or likely around 40-45 storeys.

http://www.vancouvermarket.ca/2016/0...rentwood-area/

Gilmore Station for reference:

Quote:
Originally Posted by officedweller View Post
Reply With Quote
     
     
  #942  
Old Posted Jul 26, 2016, 3:37 AM
BodomReaper BodomReaper is offline
Registered User
 
Join Date: Jul 2010
Location: Metro Vancouver
Posts: 987
Thanks for the update. Why does anyone think it's appropriate to limit FSRs so close to rapid transit?
Reply With Quote
     
     
  #943  
Old Posted Jul 26, 2016, 4:15 AM
Kisai Kisai is offline
Registered User
 
Join Date: Jun 2014
Location: Burnaby
Posts: 1,153
Quote:
Originally Posted by BodomReaper View Post
Thanks for the update. Why does anyone think it's appropriate to limit FSRs so close to rapid transit?
NIMBY's.

If anything it's because higher FAR means higher land value. So that puts stress on the neighboring properties.

Hence why there is often "view cones" or "transition" areas. Stick a SFH next to a 40 story tower, and the property value of that SFH is now worth as much as the entire tower beside it.
Reply With Quote
     
     
  #944  
Old Posted Jul 27, 2016, 4:50 AM
BodomReaper BodomReaper is offline
Registered User
 
Join Date: Jul 2010
Location: Metro Vancouver
Posts: 987
Quote:
Originally Posted by Kisai View Post
NIMBY's.

If anything it's because higher FAR means higher land value. So that puts stress on the neighboring properties.

Hence why there is often "view cones" or "transition" areas. Stick a SFH next to a 40 story tower, and the property value of that SFH is now worth as much as the entire tower beside it.
Agreed generally, but nimbys don't really apply here. No one cares - it's development in an industrial area; none of these Brentwood proposals generate public comment (besides the mall proposal itself, which abuts a single family district). That points to a line of thinking independent from nimby considerations.

If anything, it's politically advantageous to allow as much density as possible on sites like this to delay the point where single family areas are put under pressure.
Reply With Quote
     
     
  #945  
Old Posted Jul 27, 2016, 7:59 AM
cornholio cornholio is offline
Registered User
 
Join Date: Jun 2006
Posts: 3,916
Quote:
Originally Posted by officedweller View Post
New project immediately east of ONNI's Gilmore Station project:

http://www.vancouvermarket.ca/2016/0...rentwood-area/


http://www.vancouvermarket.ca/2016/0...rentwood-area/

Gilmore Station for reference:
South West corner of Madison and Lougheed has two towers sketched in. Never heard anything mentioned about any developments there (car dealership I believe and part of the rail tunnel under some of the lot.

Anyways with the new taxes I would not be surprised if this project gets postponed for a bit. Assuming the pre sales in the recent major developments in Brentwood have been heavily target by foreign speculators (as I have speculated) who will now try to unload their contracts.
Reply With Quote
     
     
  #946  
Old Posted Jul 27, 2016, 2:06 PM
HomeBoy HomeBoy is offline
Registered User
 
Join Date: Jun 2014
Posts: 39
Quote:
Originally Posted by cornholio View Post
South West corner of Madison and Lougheed has two towers sketched in. Never heard anything mentioned about any developments there (car dealership I believe and part of the rail tunnel under some of the lot.

Anyways with the new taxes I would not be surprised if this project gets postponed for a bit. Assuming the pre sales in the recent major developments in Brentwood have been heavily target by foreign speculators (as I have speculated) who will now try to unload their contracts.

The new tax doesn't apply to presale condos.
http://globalnews.ca/news/2848612/fo...e-sale-condos/
Reply With Quote
     
     
  #947  
Old Posted Jul 27, 2016, 2:51 PM
WarrenC12's Avatar
WarrenC12 WarrenC12 is offline
Registered User
 
Join Date: May 2007
Location: East OV!
Posts: 24,345
Quote:
Originally Posted by HomeBoy View Post
The new tax doesn't apply to presale condos.
http://globalnews.ca/news/2848612/fo...e-sale-condos/
That article has been updated with a statement from the BC Government as follows:

Quote:
There is no loophole—the additional tax on foreign buyers will apply for purchases of pre-sale condos when the foreign buyer registers their name on title with the Land Titles Office. Whether the buyers pays partial installments before construction is completed or all at once when the contract closes – the tax is payable if a foreign owner is making a purchase.

Most developers have contractual provisions that address the option to assign a contract to another party, typically requiring the developers consent and in some cases a portion of any gain in value the property may have experienced.

In the event a foreign buyer does assign a contract, federal withholding tax will apply.

As with any new tax, there will be attempts to plan around or circumvent it. We are prepared to take further action if we see abusive avoidance transactions occurring.
Reply With Quote
     
     
  #948  
Old Posted Jul 27, 2016, 3:05 PM
Jebby's Avatar
Jebby Jebby is offline
........
 
Join Date: Dec 2010
Location: Mexico City
Posts: 3,330
Quote:
Originally Posted by WarrenC12 View Post
That article has been updated with a statement from the BC Government as follows:
Well that's certainly unfair. Those who already put money up for a pre-sale condo shouldn't be impacted by this new tax.
Reply With Quote
     
     
  #949  
Old Posted Jul 27, 2016, 6:14 PM
Vin Vin is offline
Registered User
 
Join Date: Sep 2013
Posts: 8,724
Quote:
Originally Posted by Kisai View Post
NIMBY's.

If anything it's because higher FAR means higher land value. So that puts stress on the neighboring properties.

Hence why there is often "view cones" or "transition" areas. Stick a SFH next to a 40 story tower, and the property value of that SFH is now worth as much as the entire tower beside it.

Weird, but that actually sounds like a good thing if I want to sell my property.

Don't think view cones really apply here in Burnaby though. Very much so in Vancouver, and also North Vancouver. Residents who live in Burnaby are generally more accepting than the angry residents of Vancouver who don't like developments of any sort, especially anything that comes with a high-rise tower.
Reply With Quote
     
     
  #950  
Old Posted Jul 27, 2016, 9:25 PM
Sheba Sheba is offline
Registered User
 
Join Date: Jan 2015
Location: BC
Posts: 4,538
Quote:
Originally Posted by Vin View Post
Don't think view cones really apply here in Burnaby though. Very much so in Vancouver, and also North Vancouver. Residents who live in Burnaby are generally more accepting than the angry residents of Vancouver who don't like developments of any sort, especially anything that comes with a high-rise tower.
Burnaby has a much more defined plan of where towers are allowed, and the ones that are going in are either on former industrial land (which has been moving to the Big Bend area) or on open lots. They've been avoiding replacing SFH with towers. So the token NIMBYs that exist are drowned out by everyone else.
Reply With Quote
     
     
  #951  
Old Posted Jul 27, 2016, 9:53 PM
Marshal Marshal is offline
perhaps . . .
 
Join Date: Dec 2015
Location: Vancouver
Posts: 1,493
Quote:
Originally Posted by Kisai View Post
NIMBY's.

If anything it's because higher FAR means higher land value. So that puts stress on the neighboring properties.

Hence why there is often "view cones" or "transition" areas. Stick a SFH next to a 40 story tower, and the property value of that SFH is now worth as much as the entire tower beside it.
You are completely forgetting about zoning. If the zoning is different the proximity does not of itself result in that kind of change in 'worth.'

There are properties sprinkled through downtown Vancouver/West End in which zoning restrictions keep a property's value very low simply because prior developments preclude maximizing the property's paper potential. These examples are typically within the same zone, but the zoning dictates the proximity of tower construction such that the property in question has no possibility of the density required to build a sizable project. Some are left with no way to increase density at all, so they sit with little old structures, including single family homes with yards between two neighbouring towers.

The other condition would apply to Burnaby: rezoned industrial land, through some form of comprehensive development permits, are developed with tall towers, retail, office, whatever. Across the street is a single family housing neighbourhood, and because it is in SFH zoning, there is no way to buy up a block and develop it to high density, high value. Those houses may increase in value because of being close to new amenities, but, they could see drops or stagnation in value because the market for living so close to giant structures is weak.
Reply With Quote
     
     
  #952  
Old Posted Jul 27, 2016, 10:00 PM
Marshal Marshal is offline
perhaps . . .
 
Join Date: Dec 2015
Location: Vancouver
Posts: 1,493
Quote:
Originally Posted by Jebby View Post
Well that's certainly unfair. Those who already put money up for a pre-sale condo shouldn't be impacted by this new tax.
Well, it would be if the legal condition of a 'pre-sale agreement' was equal to a 'sale - purchase agreement.' Unfortunately that's not the case.

When one enters a pre-sale agreement, like any form of contract, they need to know what they are agreeing to and what they are getting in return. They are not getting the legal conditions that go with gaining ownership of a land/condominium title.
Reply With Quote
     
     
  #953  
Old Posted Jul 28, 2016, 2:20 AM
GilmoreStation GilmoreStation is offline
BANNED
 
Join Date: Apr 2016
Location: Burnaby
Posts: 465
Quote:
Originally Posted by WarrenC12 View Post
That article has been updated with a statement from the BC Government as follows:
What if the foreign buyer sell their presale contracts as assignments to local prior to completion?
Reply With Quote
     
     
  #954  
Old Posted Jul 28, 2016, 3:00 AM
WarrenC12's Avatar
WarrenC12 WarrenC12 is offline
Registered User
 
Join Date: May 2007
Location: East OV!
Posts: 24,345
Quote:
Originally Posted by GilmoreStation View Post
What if the foreign buyer sell their presale contracts as assignments to local prior to completion?
Then completion (and land title change) happens with the local as the buyer. No extra tax.
Reply With Quote
     
     
  #955  
Old Posted Jul 28, 2016, 6:44 AM
GilmoreStation GilmoreStation is offline
BANNED
 
Join Date: Apr 2016
Location: Burnaby
Posts: 465
Quote:
Originally Posted by WarrenC12 View Post
Then completion (and land title change) happens with the local as the buyer. No extra tax.
So this is essentially a simple loophole for current foreign investors who look to avoid the 15% tax?
Reply With Quote
     
     
  #956  
Old Posted Jul 28, 2016, 7:28 AM
Alex Mackinnon's Avatar
Alex Mackinnon Alex Mackinnon is offline
Can I has a tunnel?
 
Join Date: May 2008
Location: East Van
Posts: 2,186
Quote:
Originally Posted by GilmoreStation View Post
So this is essentially a simple loophole for current foreign investors who look to avoid the 15% tax?
Except they don't get to buy a property, which is the point.
__________________
"It's ok, I'm an engineer!" -Famous last words
Reply With Quote
     
     
  #957  
Old Posted Jul 28, 2016, 1:47 PM
sburnaby33 sburnaby33 is offline
Registered User
 
Join Date: Jun 2016
Posts: 169
Quote:
Originally Posted by Sheba View Post
Burnaby has a much more defined plan of where towers are allowed, and the ones that are going in are either on former industrial land (which has been moving to the Big Bend area) or on open lots. They've been avoiding replacing SFH with towers. So the token NIMBYs that exist are drowned out by everyone else.
In Burnaby there is certainly less outcry over development, unless it is occurring south of Central Boulevard in the Maywood area. Industrial land does not lead to much emotional attachment. I am so happy to see what is happening in Brentwood, which is why I bought in the area.

As for NIMBYism I am slightly miffed about it. I understand that people want to maintain what they are familiar with, but with a city that is growing by 40,000 a year housing units are needed to be built to accommodate this influx. Cities are living things always in a state of flux. Some parts grow and others atrophy. That is the ways things work. Stopping development to save a socially constructed image of an area is not ideal.

Last edited by sburnaby33; Jul 28, 2016 at 2:11 PM.
Reply With Quote
     
     
  #958  
Old Posted Jul 28, 2016, 7:48 PM
Caliplanner1 Caliplanner1 is offline
BANNED
 
Join Date: Mar 2015
Posts: 692
Quote:
Originally Posted by sburnaby33 View Post
As for NIMBYism I am slightly miffed about it. I understand that people want to maintain what they are familiar with, but with a city that is growing by 40,000 a year housing units are needed to be built to accommodate this influx.
....the real questions you should be asking is whether or not all this urban growth benefits Vancouver in terms of housing affordability and attendant needed urban socioeconomic stability/sustainability. Many (lower income but critical) service providers will be forced away from Vancouver (including young families headed by food service workers, police, teachers, health care workers, fire personnel, garbage collectors etc. who all are needed to keep Vancouver's economy rejuvenated and robust over the short-medium-long term).
Reply With Quote
     
     
  #959  
Old Posted Jul 28, 2016, 8:44 PM
Blease Blease is offline
Registered User
 
Join Date: Aug 2013
Posts: 549
Quote:
Originally Posted by sburnaby33 View Post
As for NIMBYism I am slightly miffed about it. I understand that people want to maintain what they are familiar with, but with a city that is growing by 40,000 a year housing units are needed to be built to accommodate this influx. Cities are living things always in a state of flux. Some parts grow and others atrophy. That is the ways things work. Stopping development to save a socially constructed image of an area is not ideal.
Agreed. Many Vancouverites at their core are hicks, who would happily bring back the small town Vancouver of the 70s & 80s. Don't get me wrong, I grew up in Vancouver and have deep roots in it, but the anti-development, anti-metropolitan, and (let's be honest) the socialist and statist mindset of much of the population is exasperating.
Reply With Quote
     
     
  #960  
Old Posted Jul 28, 2016, 9:05 PM
LeftCoaster's Avatar
LeftCoaster LeftCoaster is offline
Moderator
 
Join Date: Nov 2005
Location: Toroncouver
Posts: 13,044
Hicks is most definitely the wrong word. Don't see too many truck nuts or meshback hats in Vancouver.

I think one of the big inhibitors is the city has an aging population who moved to Vancouver for a very specific reason, it's connection to nature and nearby natural environment. They are now concerned that the city is losing what they came here for. I think most of our generation disagrees with this notion that the direction the city is going is incomparable with what makes it special, but change can be difficult, especially as people age.

I see the NIMBYism in Vancouver, and most cities in north america for that matter, getting worse before it gets better as the boomers retire and have more time on their hands to resist change.

It's up to our generation to get out there and push for the change we want to see in our world and that we will need to see in the coming decades. Not just complain about it from behind a keyboard.
Reply With Quote
     
     
This discussion thread continues

Use the page links to the lower-right to go to the next page for additional posts
 
 
Reply

Go Back   SkyscraperPage Forum > Regional Sections > Canada > Alberta & British Columbia > Vancouver > Metro Vancouver & the Fraser Valley
Forum Jump



Forum Jump


All times are GMT. The time now is 6:29 AM.

     
SkyscraperPage.com - Privacy Statement - Top

Powered by vBulletin® Version 3.8.7
Copyright ©2000 - 2026, vBulletin Solutions, Inc.