The forum will be temporairly closed soon for maintenance.
    
HomeDiagramsDatabaseMapsForum About
     

Go Back   SkyscraperPage Forum > Regional Sections > Canada > Alberta & British Columbia > Vancouver > Metro Vancouver & the Fraser Valley


Reply

 
Thread Tools Display Modes
     
     
  #381  
Old Posted Feb 23, 2015, 8:45 PM
Pinion Pinion is offline
See ya down under, mates
 
Join Date: Jul 2007
Posts: 5,167
The scale of that development is mind boggling. Like something I'd expect in China or Dubai or something.
Reply With Quote
     
     
  #382  
Old Posted Mar 11, 2015, 7:45 PM
officedweller officedweller is offline
Registered User
 
Join Date: Jul 2001
Location: Vancouver
Posts: 41,022
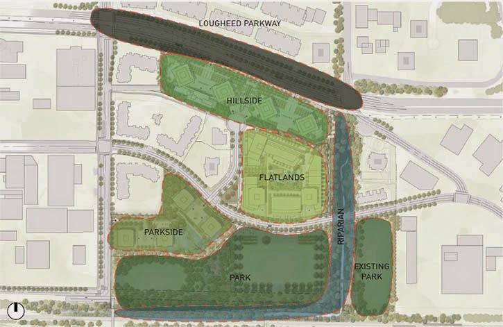
Concord Pacific's project in the eastern section of Brentwood Town Cntre - called Dragon Woods or Woodlands:e

http://brentwoodstation.blogspot.ca/...velopment.html


The new Woodlands development near Brentwood Town Centre would be divided into distinct areas. — Image Credit: CITY OF BURNABY
http://brentwoodstation.blogspot.ca/...velopment.html


The new Woodlands development near Brentwood Town Centre would be divided into distinct areas. — Image Credit: CITY OF BURNABY
http://brentwoodstation.blogspot.ca/...velopment.html
Reply With Quote
     
     
  #383  
Old Posted Mar 12, 2015, 4:31 AM
red-paladin red-paladin is offline
Vancouver Moderator
 
Join Date: Sep 2008
Location: Burnaby
Posts: 3,626
This project is more massive than Solo or Station Square.... wow...

Quote:
There up to four high-rise apartment buildings ranging in height from 35-55 storeys would be built on columns to preserve view corridors down to parkland at the south end of the site. A grand staircase would lead down the escarpment from a prominent outlook into the heart of the Woodlands development.

South of the Hillside, the Flatlands would feature a mixed range of housing as well as commercial spaces for residents including restaurants, cafés and retail. Most of the buildings would be mid-sized terraced structures between four and 15 storeys with the potential for two high-rise towers of 30-40 storeys along Dawson Street.

Four more towers of 25-45 storeys could be built in the Parkside area immediately to the southwest. The area around the buildings would be extensively landscaped to create a "private realm" that would be "park like in nature," said the report.
http://brentwoodstation.blogspot.ca/...velopment.html
Reply With Quote
     
     
  #384  
Old Posted Mar 14, 2015, 2:01 AM
officedweller officedweller is offline
Registered User
 
Join Date: Jul 2001
Location: Vancouver
Posts: 41,022
From SSC:

Quote:
Originally Posted by AudiA3 View Post
Exactly what Brentwood needs...


http://www.concordplacebrentwood.com/
Reply With Quote
     
     
  #385  
Old Posted Mar 16, 2015, 2:51 AM
Jebby's Avatar
Jebby Jebby is offline
........
 
Join Date: Dec 2010
Location: Mexico City
Posts: 3,330
Meh....

Looks extremely suburban.
Reply With Quote
     
     
  #386  
Old Posted Mar 16, 2015, 3:05 AM
osirisboy's Avatar
osirisboy osirisboy is offline
Registered User
 
Join Date: Mar 2006
Location: Vancouver BC
Posts: 6,382
Haha that was extactly what I thought. Just more point towers on townhouse podiums. It's again just like so many other large planned communities. Why are they all the same? I'm hoping Dawson gets built up as something more "urban"
Reply With Quote
     
     
  #387  
Old Posted Mar 16, 2015, 3:20 AM
Large Cat's Avatar
Large Cat Large Cat is offline
Vancouver Bus Driver
 
Join Date: Oct 2014
Location: Vancouver, BC
Posts: 396
Despite the boring sameness of this development, I'm kind of hoping another one is proposed for the area between Holdom and Woodlands too. Then we'd have a continuing line of at least semi-urbanity all the way from Gilmore to Holdom. It would be great to see Douglas and Goring redeveloped as a part of that.

Also, we're going to need another bike/pedestrian bridge over the Grandview cut to get people to the Central Valley Greenway, like they're supposed to be doing at the end of Madison near Gilmore. The whole area is still really tiresome and dangerous to bike or walk through.
Reply With Quote
     
     
  #388  
Old Posted Mar 16, 2015, 4:28 AM
urbancanadian urbancanadian is offline
Registered User
 
Join Date: Aug 2014
Location: Vancouver
Posts: 713
Quote:
Originally Posted by Large Cat View Post
Despite the boring sameness of this development, I'm kind of hoping another one is proposed for the area between Holdom and Woodlands too. Then we'd have a continuing line of at least semi-urbanity all the way from Gilmore to Holdom. It would be great to see Douglas and Goring redeveloped as a part of that.

Also, we're going to need another bike/pedestrian bridge over the Grandview cut to get people to the Central Valley Greenway, like they're supposed to be doing at the end of Madison near Gilmore. The whole area is still really tiresome and dangerous to bike or walk through.
There's another one planned at the base of Beta Avenue. You can make it out at the bottom of the plan posted by officedweller (SW tip of the "Park" district).

But yeah, it's definitely not the most walkable development, made up of a couple superblocks. I also don't think you'll see any more mega-developments to the east of this one, since there aren't any huge parcels of land. It'll just be one or two towers per project.
Reply With Quote
     
     
  #389  
Old Posted Mar 16, 2015, 6:29 AM
logan5's Avatar
logan5 logan5 is offline
Registered User
 
Join Date: Feb 2011
Location: Mt.Pleasant - The New Downtown South
Posts: 8,065
The phosphorous coating on these buildings really make them stand out. Bold move by the architect.
Reply With Quote
     
     
  #390  
Old Posted Mar 16, 2015, 5:16 PM
rofina rofina is offline
Registered User
 
Join Date: Nov 2013
Posts: 5,149
What else would you guys expect to see here?

Towers crammed 15feet from each other to try and make it seem like Downtown?

Revitalization of the massive park and waterway is just not appealing enough - too suburban?
Reply With Quote
     
     
  #391  
Old Posted Mar 16, 2015, 7:20 PM
vanman's Avatar
vanman vanman is offline
Registered User
 
Join Date: Sep 2006
Location: Vancouver BC
Posts: 6,438
The fact that the rendering places the parkland in the foreground makes the whole development look even more suburban than it would otherwise. It actually looks as though the majority of density faces Lougheed with what could be retail podiums and even an office building.

We should probably wait for more detailed renderings before passing judgement as this looks like more of a polished massing study than anything meaningful.
Reply With Quote
     
     
  #392  
Old Posted Mar 16, 2015, 9:20 PM
officedweller officedweller is offline
Registered User
 
Join Date: Jul 2001
Location: Vancouver
Posts: 41,022
It's much better than the siteplan for OMA.
Reply With Quote
     
     
  #393  
Old Posted Mar 17, 2015, 8:31 AM
VarBreStr18 VarBreStr18 is offline
Registered User
 
Join Date: Nov 2014
Posts: 747
Quote:
Originally Posted by officedweller View Post
From SSC:
Time frame anybody?
Which district is going to be developed first?
Btw wonder where does Audia 3 get those links, he seems to be always ahead of everybody. Wonder if he will ever be unsuspended.
Reply With Quote
     
     
  #394  
Old Posted Mar 17, 2015, 3:26 PM
osirisboy's Avatar
osirisboy osirisboy is offline
Registered User
 
Join Date: Mar 2006
Location: Vancouver BC
Posts: 6,382
Hopefully not soon. So many of his posts feel like gimmicky sales pitches!
Reply With Quote
     
     
  #395  
Old Posted Mar 17, 2015, 8:08 PM
Klazu's Avatar
Klazu Klazu is offline
Registered User
 
Join Date: Apr 2012
Location: Above Metro Vancouver clouds
Posts: 10,357
Never change, Burnaby. We just love how these tower projects keep coming.

When all this will be built Brentwood will have become de facto center of Burnaby. The area will have around 50 tall towers spanning three Skytrain stations. Crazy!
Reply With Quote
     
     
  #396  
Old Posted Mar 17, 2015, 10:14 PM
trofirhen trofirhen is online now
Registered User
 
Join Date: Oct 2008
Posts: 9,026
Quote:
Originally Posted by Klazu View Post
Never change, Burnaby. We just love how these tower projects keep coming.

When all this will be built Brentwood will have become de facto center of Burnaby. The area will have around 50 tall towers spanning three Skytrain stations. Crazy!
I love it !!!!!!!
Reply With Quote
     
     
  #397  
Old Posted Mar 18, 2015, 1:52 AM
Large Cat's Avatar
Large Cat Large Cat is offline
Vancouver Bus Driver
 
Join Date: Oct 2014
Location: Vancouver, BC
Posts: 396
Now we'll need a super-long sky gondola going from metrotown to Brentwood
Reply With Quote
     
     
  #398  
Old Posted Mar 18, 2015, 4:09 AM
red-paladin red-paladin is offline
Vancouver Moderator
 
Join Date: Sep 2008
Location: Burnaby
Posts: 3,626
I feel that the semi-'tower in the park' format is appropriate for this site, as it's between the urban Brentwood zone, and then existing suburban neighbourhoods, and flat out industrial. Also, clearly there is demand for 'tower in the park', Edmonds station type product. I would only be mad if this was proposed for the lot immediately south of the mall, as that needs to be urban. This kind of development is not taking away land that was going to be urban, it's taking away low density warehouse and potential townhouse / lowrise zoning.
Reply With Quote
     
     
  #399  
Old Posted Mar 18, 2015, 4:20 AM
VarBreStr18 VarBreStr18 is offline
Registered User
 
Join Date: Nov 2014
Posts: 747
Quote:
Originally Posted by officedweller View Post
It's much better than the siteplan for OMA.
Because this is a project with collaboration of city and developer which is rare.City has a lot of input into this .
Love the park despite the many high rises . Hope they have recreation for everybody... Playground , bike path, basketball , tennis.
Reply With Quote
     
     
  #400  
Old Posted Mar 18, 2015, 6:54 AM
officedweller officedweller is offline
Registered User
 
Join Date: Jul 2001
Location: Vancouver
Posts: 41,022
Quote:
Originally Posted by VarBreStr18 View Post
Because this is a project with collaboration of city and developer which is rare.City has a lot of input into this .
Love the park despite the many high rises . Hope they have recreation for everybody... Playground , bike path, basketball , tennis.
Probably as a result of Concord's previous experience is satisfying municipal requirements for parks, etc. at its other large site projects.
(PS not a collaboration in the monetary sense, more of a consultation or negotiation).

Was OMA built before the Brentwood Town Centre plan was passed?
Reply With Quote
     
     
This discussion thread continues

Use the page links to the lower-right to go to the next page for additional posts
 
 
Reply

Go Back   SkyscraperPage Forum > Regional Sections > Canada > Alberta & British Columbia > Vancouver > Metro Vancouver & the Fraser Valley
Forum Jump



Forum Jump


All times are GMT. The time now is 10:00 AM.

     
SkyscraperPage.com - Privacy Statement - Top

Powered by vBulletin® Version 3.8.7
Copyright ©2000 - 2026, vBulletin Solutions, Inc.