HomeDiagramsDatabaseMapsForum About
     

Go Back   SkyscraperPage Forum > Regional Sections > Canada > Manitoba & Saskatchewan


Reply

 
Thread Tools Display Modes
     
     
     
     
  #1  
Old Posted Aug 28, 2025, 2:58 PM
neutroniks neutroniks is offline
Registered User
 
Join Date: Nov 2022
Posts: 722
https://www.skyscraperpage.com/forum...d.php?t=261745



@Rebl, if you check the Winnipeg Construction XI thread, you'll see the design concept for the renovation. It's a complete gutting. There will be residences, services and spaces for local businesses.
Reply With Quote
     
     
  #2  
Old Posted Aug 28, 2025, 3:05 PM
borkborkbork's Avatar
borkborkbork borkborkbork is offline
Registered User
 
Join Date: Jul 2014
Posts: 1,618
Cool looking design. How do you avoid the greenhouse effect and temperature stratification in a glassed-in centre atrium of this size?
Reply With Quote
     
     
  #3  
Old Posted Sep 8, 2025, 10:04 PM
cheswick's Avatar
cheswick cheswick is offline
Registered User
 
Join Date: Nov 2010
Location: South Kildonan
Posts: 2,934
Quote:
Originally Posted by borkborkbork View Post
Cool looking design. How do you avoid the greenhouse effect and temperature stratification in a glassed-in centre atrium of this size?
Theres an apartment on university crescent with a larger glass enclosure than this. I assume the surrounding materials (concrete etc) absorb a lot of heat and releases it when the sun is down.
__________________
There are 10 kinds of people in this world. Those who understand binary, and those who don't.
Reply With Quote
     
     
  #4  
Old Posted Sep 9, 2025, 12:08 AM
Kinguni's Avatar
Kinguni Kinguni is offline
Registered User
 
Join Date: Mar 2008
Location: Manitoba
Posts: 1,567
Quote:
Originally Posted by cheswick View Post
Theres an apartment on university crescent with a larger glass enclosure than this. I assume the surrounding materials (concrete etc) absorb a lot of heat and releases it when the sun is down.
You don't want an inside apartment there there. Humidity builds up enough that it rains inside, and everybody's cooking filters into your apartment.
Reply With Quote
     
     
  #5  
Old Posted Sep 9, 2025, 2:22 PM
borkborkbork's Avatar
borkborkbork borkborkbork is offline
Registered User
 
Join Date: Jul 2014
Posts: 1,618
Quote:
Originally Posted by cheswick View Post
Theres an apartment on university crescent with a larger glass enclosure than this. I assume the surrounding materials (concrete etc) absorb a lot of heat and releases it when the sun is down.
That's the building I was thinking about. Apparently it's atrocious to live there. I was wondering how you avoided turning it into a greenhouse like that building apparently is.
Reply With Quote
     
     
  #6  
Old Posted Dec 5, 2020, 2:24 AM
trueviking's Avatar
trueviking trueviking is offline
surely you agree with me
 
Join Date: Sep 2004
Location: winnipeg
Posts: 14,697
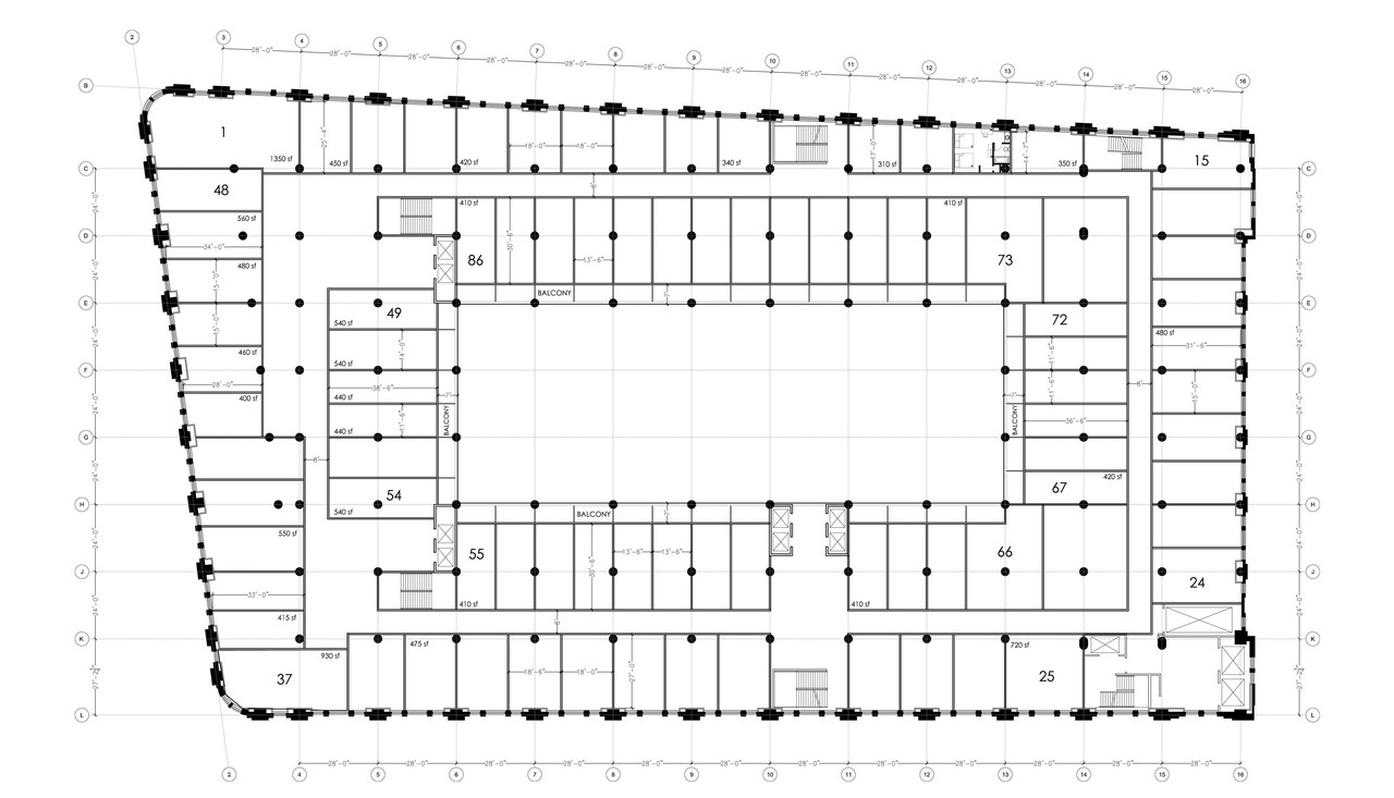
Here was a hotel suite layout with a hole. Gives you an idea of scale. The hole looks huge in the rendering but not in plan.

Reply With Quote
     
     
  #7  
Old Posted Dec 5, 2020, 2:41 AM
ue ue is offline
Registered User
 
Join Date: Apr 2009
Posts: 9,475
Winners/HomeSense and a Safeway/Save-On/Sobeys sharing the first 2-3 levels. Similar to Edmonton's Brewery District or the Plaza at Polo Park across from the theatre, but more cleverly keeping the ornate architecture of the Bay a la Simons on 8th in Calgary. The above floors can be turned into affordable housing. Maybe a restaurant on the main floor, too.
Reply With Quote
     
     
  #8  
Old Posted Dec 5, 2020, 2:59 AM
trueviking's Avatar
trueviking trueviking is offline
surely you agree with me
 
Join Date: Sep 2004
Location: winnipeg
Posts: 14,697
Basement: Sobeys
Floor 1: Walmart
Floor 2: Canadian Tire
Floor 3: Home Depot
Floor 4 IKEA
Floor 5: Best Buy
Floor 6: Winners/Home Sense
Reply With Quote
     
     
  #9  
Old Posted Dec 5, 2020, 3:41 AM
esquire's Avatar
esquire esquire is offline
Registered User
 
Join Date: Oct 2001
Posts: 37,483
Sounds like a repeat of Portage Place but with big box stores this time.

With the state of retail generally and the state of retail downtown specifically, I have a hard time seeing retail being more than a tiny fraction of whatever ends up in there. Kind of like Cityplace, maybe just the bottom floor or two.
Reply With Quote
     
     
  #10  
Old Posted Dec 5, 2020, 5:01 AM
plrh plrh is offline
Registered User
 
Join Date: Apr 2012
Location: Winnipeg
Posts: 928
Quote:
Originally Posted by esquire View Post
Sounds like a repeat of Portage Place but with big box stores this time.

With the state of retail generally and the state of retail downtown specifically, I have a hard time seeing retail being more than a tiny fraction of whatever ends up in there. Kind of like Cityplace, maybe just the bottom floor or two.
Maybe a couple of levels of parking in there too, like City Place. The parking could be used to placate suburban taxpayers. It's a solid building, it can hold some cars and you wouldn't even know it from the outside. Then the old parkade could be freed up for redevelopment. Exposed concrete doesn't last forever.
Reply With Quote
     
     
  #11  
Old Posted Dec 5, 2020, 5:03 AM
ue ue is offline
Registered User
 
Join Date: Apr 2009
Posts: 9,475
Quote:
Originally Posted by esquire View Post
Sounds like a repeat of Portage Place but with big box stores this time.

With the state of retail generally and the state of retail downtown specifically, I have a hard time seeing retail being more than a tiny fraction of whatever ends up in there. Kind of like Cityplace, maybe just the bottom floor or two.
Cityplace is a glorified food court at this point. The retail I specified is both realistic and useful for demographics in the core in a way that it will hopefully be profitable. Winners covers basic clothing, HomeSense basic home goods (and both are very popular brands), and a grocery store covers food.
Reply With Quote
     
     
  #12  
Old Posted Dec 5, 2020, 4:09 PM
esquire's Avatar
esquire esquire is offline
Registered User
 
Join Date: Oct 2001
Posts: 37,483
Quote:
Originally Posted by ue View Post
Cityplace is a glorified food court at this point. The retail I specified is both realistic and useful for demographics in the core in a way that it will hopefully be profitable. Winners covers basic clothing, HomeSense basic home goods (and both are very popular brands), and a grocery store covers food.
I'm not concerned with the specific tenants at Cityplace as I am with the overall proportions. Cityplace has two floors of retail which is a bit of a relic of the old days when it was connected to Eaton's, but large chunks of it has been converted to office and other uses. If you take out all of the office spaces and what not, it's basically down to one floor and a bit of retail which is about what I'd expect. I think any redevelopment at The Bay would be similar... maybe just retail on the main floor and that's about it. I can't see there being demand for much more than that.
Reply With Quote
     
     
  #13  
Old Posted Dec 5, 2020, 3:17 PM
bomberjet bomberjet is offline
Registered User
 
Join Date: Nov 2012
Location: Winnipeg
Posts: 15,798
Theres a hyatt place in Minneapolis with a hole in the middle. Not sure what the building was before. But I liked it. Rooms were a good size too.
Reply With Quote
     
     
  #14  
Old Posted Dec 6, 2020, 5:40 AM
plrh plrh is offline
Registered User
 
Join Date: Apr 2012
Location: Winnipeg
Posts: 928
Quote:
Originally Posted by bomberjet View Post
Theres a hyatt place in Minneapolis with a hole in the middle. Not sure what the building was before. But I liked it. Rooms were a good size too.
I stayed there two years ago. It's a strange building to be sure. It does seem like a reuse. The rooms were twice as deep as normal hotel rooms. I think the apartments on top were added later. Maybe even the hotel was added on top of the parking levels after the initial build. A lot of hotels have a hollow atrium from the lobby to the top, like the Luxor in Las Vegas. Google has no info other than booking sites about this property.
Reply With Quote
     
     
  #15  
Old Posted Dec 6, 2020, 6:16 AM
DavefromSt.Vital DavefromSt.Vital is offline
Registered User
 
Join Date: Oct 2006
Location: Yonge and Davisville
Posts: 697
Quote:
Originally Posted by plrh View Post
I stayed there two years ago. It's a strange building to be sure. It does seem like a reuse. The rooms were twice as deep as normal hotel rooms. I think the apartments on top were added later. Maybe even the hotel was added on top of the parking levels after the initial build. A lot of hotels have a hollow atrium from the lobby to the top, like the Luxor in Las Vegas. Google has no info other than booking sites about this property.
If you go back in time in Google Streetview it looks like it was originally an Embassy Suites. Their standard build is a double-deep room with a large lobby atrium.
Reply With Quote
     
     
  #16  
Old Posted Dec 5, 2020, 5:22 PM
buzzg buzzg is offline
Registered User
 
Join Date: Apr 2013
Posts: 7,834
The basement of The Bay could hold a ton of cars. Make the parkade entrance where the current loading dock is. Then build something worthy of Memorial Blvd on the old parkade site. This is where CV could come in and help get the parkade land deal done.
Reply With Quote
     
     
  #17  
Old Posted Dec 6, 2020, 7:59 AM
BAKGUY BAKGUY is offline
Registered User
 
Join Date: Oct 2014
Posts: 1,356
Well, mixed use....a supermarket Whichever (Safeway/Sobeys/No Frills/Sa-v-on/ Red River Co-op) in the lower level and alog it perhaps a dozen moderate scale to upper end food to go places..Main/ Boutiques..2nd floor Winners,Marshalls & Winners..Unless they go to the renovated Portage Place..I think a combo of 2 floors of hotel, tourists shall patronize the food places, restaurants and shops. Then 2 or 3 floors of residential..Perhaps one floor of offices. to round it out? 9 - 5 is not enough to make it work so Retail, unique food offerings that cater to downtown residents, visitors, then Hotel & residential is best

Last edited by BAKGUY; Dec 6, 2020 at 8:23 AM.
Reply With Quote
     
     
  #18  
Old Posted Dec 7, 2020, 4:26 PM
buzzg buzzg is offline
Registered User
 
Join Date: Apr 2013
Posts: 7,834
If I'm starting blank slate with the Bay, I'm either turning the basement into parking and/or using it as warehousing/storage for whatever else is in the building, or leasing out for the same purposes. Why try and fill a windowless cavernous 80,000 sqft when you have another 600,000+ above to sort out too.
Reply With Quote
     
     
  #19  
Old Posted Dec 7, 2020, 4:36 PM
esquire's Avatar
esquire esquire is offline
Registered User
 
Join Date: Oct 2001
Posts: 37,483
^ Seems logical to me. Hell, they could probably convert that basement to parking right now and pull in cash from nearby office workers, students and residents while they figure out the rest.
Reply With Quote
     
     
  #20  
Old Posted Dec 7, 2020, 5:30 PM
CoryB CoryB is offline
Registered User
 
Join Date: Mar 2012
Posts: 6,096
1. If you are putting groceries in the Bay downtown its main floor or bust. Yes, when there were other things in the building the basement made sense but with a blank slate it makes more sense to be the main floor as you have customers with fairly heavy loads. They aren't stopping on the main floor to say browse Winners on their way out. The opposite would be true though, someone coming down from a second floor Winners and going through the grocery store might pick something up along the way.

2. Off price clothing retail has repeatedly been tried downtown and just fails to connect. Putting a different banner on the store isn't suddenly going to make it work.

3. The parking idea seems dead in the water. The Bay parkade literally next door seems to lack the demand needed even at peak times. That means any parking in the Bay building is likely going to be at lower market rates making it more difficult to recover the costs.

4. The one thing in recent years that had large volumes of people going to the Bay is Third and Bird. The farmers market at Hydro is also very popular. Perhaps some sort of model with an emphasis towards food vendors in summer but having smaller independently operated stalls would work. Sort of the "year round farmers market" people keep talking about but acknowledging that in the cold months there isn't really local produce. Might almost make sense to have a non-profit operating a larger market and purchasing produce/meat/eggs/etc from local producers and then selling it on their behalf. Great care would need to go in that in warm months it would be only local stuff and then in cold months only bringing in non-local when necessary. The basement could even be used to grow greens and act as cold storage for out of season root crops. The second floor could then be small stall local vendors. Sort of like The Forks Market when it first started out before it turned into just another mall.
Reply With Quote
     
     
This discussion thread continues

Use the page links to the lower-right to go to the next page for additional posts
 
 
Reply

Go Back   SkyscraperPage Forum > Regional Sections > Canada > Manitoba & Saskatchewan
Forum Jump


Thread Tools
Display Modes

Forum Jump


All times are GMT. The time now is 2:42 AM.

     
SkyscraperPage.com - Privacy Statement - Top

Powered by vBulletin® Version 3.8.7
Copyright ©2000 - 2026, vBulletin Solutions, Inc.