SkyscraperPage Forum

SkyscraperPage Forum (https://skyscraperpage.com/forum/index.php)
-   Canada (https://skyscraperpage.com/forum/forumdisplay.php?f=18)
-   -   Canadian City Proposals II (https://skyscraperpage.com/forum/showthread.php?t=256524)

isaidso Jan 18, 2025 7:26 PM

Quote:

Originally Posted by Coldrsx (Post 10350493)

Only in Canada/US would this be considered 'nice'. It's a grey box with no architectural detail to speak of. A wall of glass at grade?

https://www.skyscrapercity.com/cdn-c...0-png.8584627/

A lot of New Builds in Europe look like this. Architectural detail, colour, human scaled at grade, etc. If you plonked that Edmonton proposal in the square below I doubt you'd find anyone describing it as nice. You'd get lots calling it a depressing shoebox ruining the place.

https://www.skyscrapercity.com/cdn-c...7-png.8584652/

.https://www.youtube.com/watch?v=iRdwXQb7CfM

Nouvellecosse Jan 18, 2025 10:11 PM

^ In fairness that appears to be a main square and waterfront in the heart of a Copenhagen which is a relatively major capital city. Not just some random development on a residential street. Perhaps Europe has a recent trend of new buildings that copy older styles, but for many decades their typical residential areas were largely not anything to get worked up over. Depending on the country, there has been everything from council estates in the UK, Soviet highrises in the former eastern block, to just basic utilitarian homes unadorned by detailing and bright colours. I believe it was Kool or someone here on the forum who lives (or lived) in Stockholm who talked about the huge contrast between the historic central parts of the city which he found beautiful and grand compared to the rest which he considered drab and depressing. From what he described, it seems like they just have a greater contrast than we do. Which shouldn't be surprising considering that being more historic gives them a more established city centre aesthetic, while modernism partly originated in Europe with early figures like Adolf Loos, Le Corbusier, and Mies et al.

Personally I don't think we need our residential areas to be touristy showcases. Our city centres tend to have lots of colour, texture, and vibrancy despite being of a different type. And in Europe there are countless random residential areas where you get rather drab, monotonous residential buildings. So you see all kinds of examples ranging from interesting and/or attractive landmarks down to bland council estates.

The other thing that's important to remember modernist buildings and their derivatives function as a negative space meaning that their beauty and aesthetic appeal comes largely from what they lack rather than from what they have. That provides a contrast to, and relief from, busier and more visually detailed elements (buildings, forests, etc.) Which means they don't do well on their own as the prevailing visual element. So it's not surprising that modernism arose out of the visual excesses of the Victorian-era and was superseded by things like POMO, Neo-futurism, and Deconstructivism which offer the more prominent visual presence demanded by landmarks and central spaces.

Tone Jan 19, 2025 1:26 PM

Quartier Maritime - This one a go
https://live.staticflickr.com/65535/...671b15d2_b.jpg
Quote:

La Société de développement Angus confirme que les travaux sur le terrain débuteront dans la semaine du 27 janvier pour la construction de 500 logements abordables au centre-ville de Rimouski, a appris Le Soir.ca
Quote:

Confirmed that work will begin on the week of January 27
https://journallesoir.ca/2025/01/14/...le-27-janvier/

davidivivid Jan 19, 2025 2:37 PM

New project under construction inside the walls of Old Quebec: QG Vieux-Québec. The first floor will house a food hall, a pharmacy and a medical clinic whilst 25 luxury condos will be situated on the upper floors.

https://blogger.googleusercontent.co...14372230_n.png
https://www.qgvieuxquebec.ca/

J.OT13 Jan 20, 2025 1:28 PM

That is a nice one in Quebec City!

Coldrsx Jan 20, 2025 1:55 PM

^classy. modern. sexy

Tone Jan 20, 2025 2:36 PM

Hôtel Rimouski Convention center expansion
https://live.staticflickr.com/65535/...ede04d8e_o.png
Dubbed one of the largest convention center in Québec at 30 000 sqft, the expansion will also feature the province's third ¨Salon de jeux¨ (gaming and entertainment venue) as well as 40 new rooms in the Hotel section. Start of construction is scheduled for spring for an opening in 2026.
https://journallesoir.ca/2024/11/26/...oogle_vignette

WhipperSnapper Jan 20, 2025 3:21 PM

Quote:

Originally Posted by Nouvellecosse (Post 10352429)
^ In fairness that appears to be a main square and waterfront in the heart of a Copenhagen which is a relatively major capital city. Not just some random development on a residential street. Perhaps Europe has a recent trend of new buildings that copy older styles, but for many decades their typical residential areas were largely not anything to get worked up over. Depending on the country, there has been everything from council estates in the UK, Soviet highrises in the former eastern block, to just basic utilitarian homes unadorned by detailing and bright colours. I believe it was Kool or someone here on the forum who lives (or lived) in Stockholm who talked about the huge contrast between the historic central parts of the city which he found beautiful and grand compared to the rest which he considered drab and depressing. From what he described, it seems like they just have a greater contrast than we do. Which shouldn't be surprising considering that being more historic gives them a more established city centre aesthetic, while modernism partly originated in Europe with early figures like Adolf Loos, Le Corbusier, and Mies et al.

Personally I don't think we need our residential areas to be touristy showcases. Our city centres tend to have lots of colour, texture, and vibrancy despite being of a different type. And in Europe there are countless random residential areas where you get rather drab, monotonous residential buildings. So you see all kinds of examples ranging from interesting and/or attractive landmarks down to bland council estates.

The other thing that's important to remember modernist buildings and their derivatives function as a negative space meaning that their beauty and aesthetic appeal comes largely from what they lack rather than from what they have. That provides a contrast to, and relief from, busier and more visually detailed elements (buildings, forests, etc.) Which means they don't do well on their own as the prevailing visual element. So it's not surprising that modernism arose out of the visual excesses of the Victorian-era and was superseded by things like POMO, Neo-futurism, and Deconstructivism which offer the more prominent visual presence demanded by landmarks and central spaces.

The point being made got lost in translation with posting a European heritage district with strict guidlines. Not only that, IIRC, Copenhagen doesn't have private development. The municipality chooses the architect and approves every aspect of the designs for developers than to build. Good or bad, it's a highly authoritative process.

As for the Edmonton building, I don't know how anyone can call it nice either. That doesn't mean it's awful. It's just not nice. Adding more thought and interest, in particular, the repetitive CRU design shouldn't break any budget. What would cost more but, would be a valued investment considering this building could be there over 100 years from now is a staggered ground floor to eliminate the concrete steps.

niwell Jan 20, 2025 3:45 PM

A lot of new development in Copenhagen looks more like this (at least from my perceptions when I visited): https://maps.app.goo.gl/cZsZ3Ah4WTKdM9U3A
https://maps.app.goo.gl/Qqqgb6vfKtmceAwC7

Which is pretty attractive for a new build to be sure, but still features the wide footprints we see here and is in a contemporary style. It's not really that different from what one sees in the non-highrise masterplanned communities on this side of the world. Thinking Lower Don Lands for instance.

TorontoDrew Jan 20, 2025 8:55 PM

Quote:

Originally Posted by Tone (Post 10353101)
Hôtel Rimouski Convention center expansion
https://live.staticflickr.com/65535/...ede04d8e_o.png
Dubbed one of the largest convention center in Québec at 30 000 sqft, the expansion will also feature the province's third ¨Salon de jeux¨ (gaming and entertainment venue) as well as 40 new rooms in the Hotel section. Start of construction is scheduled for spring for an opening in 2026.
https://journallesoir.ca/2024/11/26/...oogle_vignette

What a mess, it looks like a Costco. 30,000sqft seems rather small to be one of the largest convention centres in Quebec, Montreal has one that is 550,000 square feet. Or did you mean the largest in QC? The largest in QC has 300,000 sqft.

Tone Jan 20, 2025 11:51 PM

Quote:

Originally Posted by TorontoDrew (Post 10353448)
What a mess, it looks like a Costco. 30,000sqft seems rather small to be one of the largest convention centres in Quebec, Montreal has one that is 550,000 square feet. Or did you mean the largest in QC? The largest in QC has 300,000 sqft.

The journalist meant for the province but i agree its sounds a bit delusional, it may just make the top 10 perhaps. How will it compare to similar sized cities (55k) is more interesting to me.

davidivivid Jan 21, 2025 5:33 AM

Proposal for the last privately owned, large surface parking lot downtown (Basse-Ville).


https://blogger.googleusercontent.co...00/WGVGseg.png


https://blogger.googleusercontent.co...69974380_n.jpg

J.OT13 Jan 21, 2025 2:31 PM

Another good Quebec City proposal. Decently tall too for the area.

kool maudit Jan 21, 2025 2:35 PM

Isaidso's photo is of Stortorget in the old city of Stockholm. Those houses are from the 17th and 18th centuries.

It is true that there are some new developments that are being built in a 19th century style, like this one in the suburb of Upplands Vasby.

https://www.upplandsvasby.se/images/...6der_900px.jpg

They remain the minority, however. I would say that this sort of thing remains the norm for new urban development here. It's not terrible but hardly exciting:

https://i.imgur.com/oXCtpDH.png

https://upload.wikimedia.org/wikiped...01_2024-08.jpg

Stockholm maintains a portal at vaxer.stockholm (Stockholm grows) where it shows all of the new areas that are in planning or construction. Most of them look more or less like the above. I don't find these projects very interesting, for the most part. All of these areas feel the same. They work fine, and have transit access and retail and all the rest, but they're all alike and it basically feels like the airport. Supermarket, liquor store, pharmacy, post office and either Sushi Yama, Bastard Burger or Hawaii Poke.

Coldrsx Jan 21, 2025 2:36 PM

Ahem.... 'Modern Scandinavian aka simplistic, clean design'.

isaidso Jan 21, 2025 4:53 PM

Quote:

Originally Posted by kool maudit (Post 10353917)
Isaidso's photo is of Stortorget ...

It is true that there are some new developments that are being built in a 19th century style, like this one in the suburb of Upplands Vasby.

They remain the minority, however. I would say that this sort of thing remains the norm for new urban development here. It's not terrible but hardly exciting:

https://i.imgur.com/oXCtpDH.png

The takeaway is about producing a finely grained human scale street wall instead of 40m of nothing. I don't find the example you provided visually interesting either but there are absolutely new modern examples all over Europe where great attention was paid to architectural detail/ornamentation rather than the stripped down wall of grey you showed. I'm not suggesting we need to engage in architectural recreation but we need to do better than these block long blank wall buildings that do little to improve the vibrancy of the streets they're built on.


Gdansk, Poland

https://www.skyscrapercity.com/attac...4-gif.8419191/

cranes Jan 24, 2025 3:18 AM

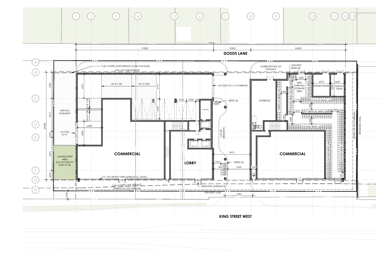
924-944 King St W Kitchener | 28 fl | Proposed | ABA Architects for Dez Capital Corporation

@ZEBuilder 01-21-2025
Quote:

This is a single tower development being developed by two numbered companies 1000100206 Ontario and 1000187534 Ontario. It's located at 924-944 King St W which is directly across from Mt Hope St. The company behind this appears to be Dez Capital, they haven't done anything remotely close to the scale of this so it would not be surprising if this sits for years.

The building itself is 28 floors containing 341 residential units, comprising of 224 1 bdrm, 97 2 bdrm, and 30 3 bdrm units. It will have a 5 floor podium as well as 1 floor of underground parking, in total there will be 182 parking spaces split between the underground level and the podium. The site will also contain 350 bicycle spaces with 290 spaces on the ground floor of the building in a secured room.

For amenity space there is 2500 sqft of interior space provided on the 6th floor as well as 4671 sqft of outdoor amenity space on the 6th floor. Each unit will also have a balcony or terrace which is included in the 8sqm of amenity space per unit.

In terms of commercial space there is 7093 sqft provided on the ground floor in two separate units. One is 4352 sqft and the other is 2741 sqft.

The building itself is not award winning but there is some colour albeit its only in the podium. The rest is the typical grey and black.

Arch set: 924 King Arch Set
Planning Docs: 924 King Planning Docs

The architect for the project is ABA. Geotechnical is provided by Englobe. Functional servicing (Storm/Sanitary/Water requirements) is provided by WalterFedy. The TIS was completed by Paradigm who do almost every TIS for local projects.
Site Plan:
https://www.waterlooregionconnected....t.php?aid=8924

@Paclo 01-22-2025

https://cdn.skyrisecities.com/forum/...18-jpg.626950/

https://cdn.skyrisecities.com/forum/...19-jpg.626951/

https://cdn.skyrisecities.com/forum/...03-jpg.626949/

https://cdn.skyrisecities.com/forum/...02-jpg.626948/

Existing conditions on site, via Google Street View:
https://cdn.skyrisecities.com/forum/...10-jpg.626952/

https://cdn.skyrisecities.com/forum/...-9-jpg.626953/

WhipperSnapper Jan 24, 2025 7:18 PM

Once again Kitchener doesn't disappoint in making everything else posted look so much better. (although Ottawa really wants to dethrone Kitchener for some reason)

MonctonRad Jan 24, 2025 7:24 PM

Quote:

Originally Posted by WhipperSnapper (Post 10357181)
Once again Kitchener doesn't disappoint in making everything else posted look so much better. (although Ottawa really wants to dethrone Kitchener for some reason)

:haha::haha::haha:

Kitchener just wants to be an exemplar of something, anything.......... :)

Coldrsx Jan 29, 2025 4:34 AM

Edmonton
https://cdn.skyrisecities.com/forum/...pm-png.628401/


All times are GMT. The time now is 7:07 PM.

Powered by vBulletin® Version 3.8.7
Copyright ©2000 - 2026, vBulletin Solutions, Inc.